[Dẫn lời KTS]
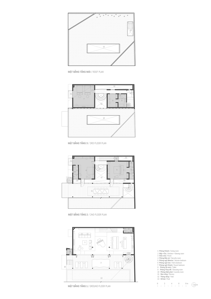
Nằm trong một khuôn viên xanh mát, đa chức năng với biệt thự, sân giải trí, sân tennis, quán cà phê, hồ bơi và vườn, nhà mái gấp Roof Folding House là một thiết kế thông minh dựa trên hai phần chính: phần được xây dựng cố định là khối nhà chính và phần xây dựng nhẹ là hiên.
Mái ngói gấp kết nối hai phần này với nhau, làm giảm chiều cao công trình, đồng thời che chắn ánh nắng từ phía Đông, hướng toàn bộ không gian sống về phía sân vườn và bể bơi.
Toàn bộ ngoại thất được ốp bằng đá ong kết hợp với mái ngói truyền thống giúp công trình trở nên thẩm mỹ và vững chãi hơn. Thiết kế này là chỗ nghỉ cuối tuần riêng tư của gia chủ, đồng thời cũng phục vụ tiện ích chung cho khu dân cư xung quanh.
- Thiết kế: MDA Architecture
- Diện tích: 460 m²
- Địa điểm: Vĩnh Lộc B, Bình Hưng Hoà, Bình Tân, TP.HCM
- Năm: 2020
- Hình ảnh: Quang Tran


















































Để lại đánh giá