[Dẫn lời KTS]
Nằm trên tuyến phố khá yên tĩnh của Hà Nội, điểm cộng sâu sắc của công trình là cách phân chia cấu trúc các tầng dựa trên sự bố trí sẵn có của ngôi nhà cũ, nhưng sự ngẫu nhiên ở đây hết sức thú vị bởi nó đúng với tinh thần nhộn nhịp của Thượng Hải phố.
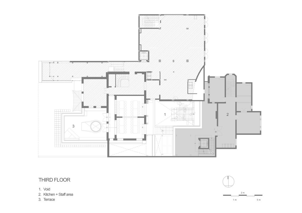
Những dãy nhà cao thấp chen chúc nhau một cách có trật tự, toàn bộ không gian khai thác theo phương thẳng đứng kéo thực khách đi từ không gian nhỏ đến không gian lớn, từ sự ngạc nhiên này đến ngạc nhiên khác.
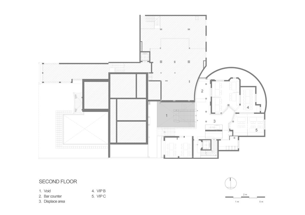
Điểm nổi bật tạo sự thu hút và là sự trình diễn đặc sắc nhất trong cấu trúc của The Pot đó chính là khu sân trong với khoảng thông tầng cao 15m bố trị hệ trần kính lấy sáng ban ngày và tạo nên một bầu trời sao khi đêm về. Đồng thời mang đến cho thực khách những cảm nhận chân thực nhất về sư sôi động của Thượng Hải giao hòa hai yếu tố ngày và đêm.
Hai yếu tố này chính là ngôn ngữ thiết kế đặc trưng của Kiến trúc truyền thống Á Đông, trong không gian giữa luôn sắp xếp một giếng trời hoặc sân trong tạo sự đối lưu không khí, tạo sự linh hoạt và cởi mở trong luồng luân lưu bên trong công trình.
Sự tinh tế trong thiết kế còn thể hiện qua việc bố trí màu sắc trong công trình, trong The Pot, màu sắc chủ đạo và cách phối trộn hài hòa theo màu sắc của Ngũ Hành như tone đỏ của lửa tương trưng cho Hỏa, gạch xanh ngọc lam – Thủy, Đen nâu xám của gạch lát sàn sảnh đại diện cho Thổ, màu Xanh của cây cối – Mộc, Hệ sắt thép – Kim. Những tông màu được thể hiện và bố trí hết sức hài hòa, làm tôn lên vẻ đẹp của từng ngõ ngách của công trình.
Với The Pot mọi góc cạnh dường như là một tác phẩm nghệ thuật, với sự kết hợp của nhiều phong cách, thêm điên rồ và ấn tượng giúp thực khách thêm nhiều trải nghiệm mới mẻ mỗi khi ngồi ở một vị trí mới tại công trình. Chính điều đó khiến The Pot trở thành một luồng gió mới, mang tới sự thành công trong giai đoạn vận hành công trình.
- Thiết kế: Lê House
- Địa điểm: 84 Nguyễn Du, Quận Hai Bà Trưng, Hà Nội
- Diện tích: 963m2
- Năm: 2018
- Hình ảnh: Hoàng Lê









































































Để lại đánh giá