[Dẫn lời KTS]
Căn biệt thự nằm ở vị trí góc với tầm nhìn bao quát hướng ra đồng cỏ rộng lớn xung quanh trong một khu dân cư quy hoạch. Yêu cầu đối với kiến trúc sư cho công trình này bao gồm công năng sử dụng cho một gia đình có 2 con với phong cách sống hiện đại, không gian mở rộng tận dụng được hết tầm nhìn. Bên cạnh đó có khả năng ngăn nhiệt độ cao bởi ánh sáng trực tiếp từ phía Tây cũng như giữ an ninh vì mật độ dân cư ở đây thấp.
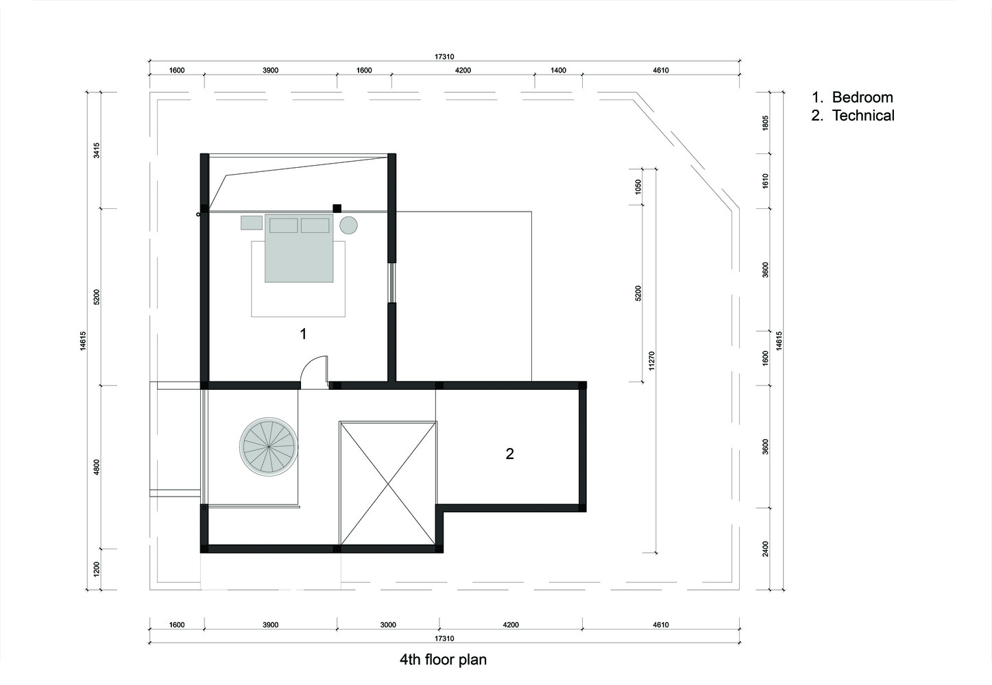
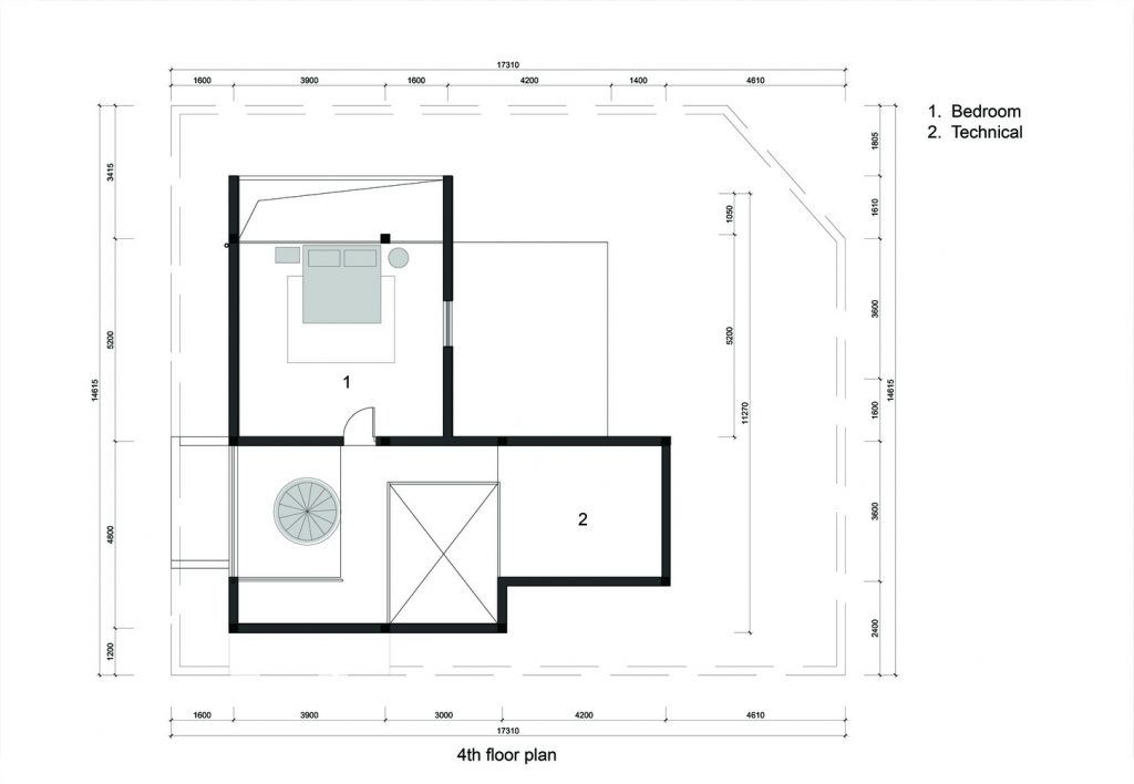
Thiết kế cuối cùng là một hình khối đơn giản, cô đọng nhưng vẫn giữ được sự hài hòa với tổng thể kiến trúc xung quanh. Có thể dễ dàng nhìn thấy ngôi biệt thự ở phía xa đồng cỏ. Một tầng áp mái lớn được thiết kế bao quanh tầng 1 để che nắng cho không gian bên trong. Tầng áp mái phía trên sẽ là một ban công lớn, nơi gia chủ có thể ngồi ngắm cảnh đồng cỏ vào mỗi buổi sáng.
Toàn bộ mặt tiền biệt thự được sử dụng hệ thống lam linh hoạt, có thể đóng mở rộng, điều chỉnh được ánh sáng vào nhà và đảm bảo an ninh. Tùy thuộc vào thời tiết và cảm giác, ngôi nhà có thể mở hoặc đóng với thiên nhiên bên ngoài.
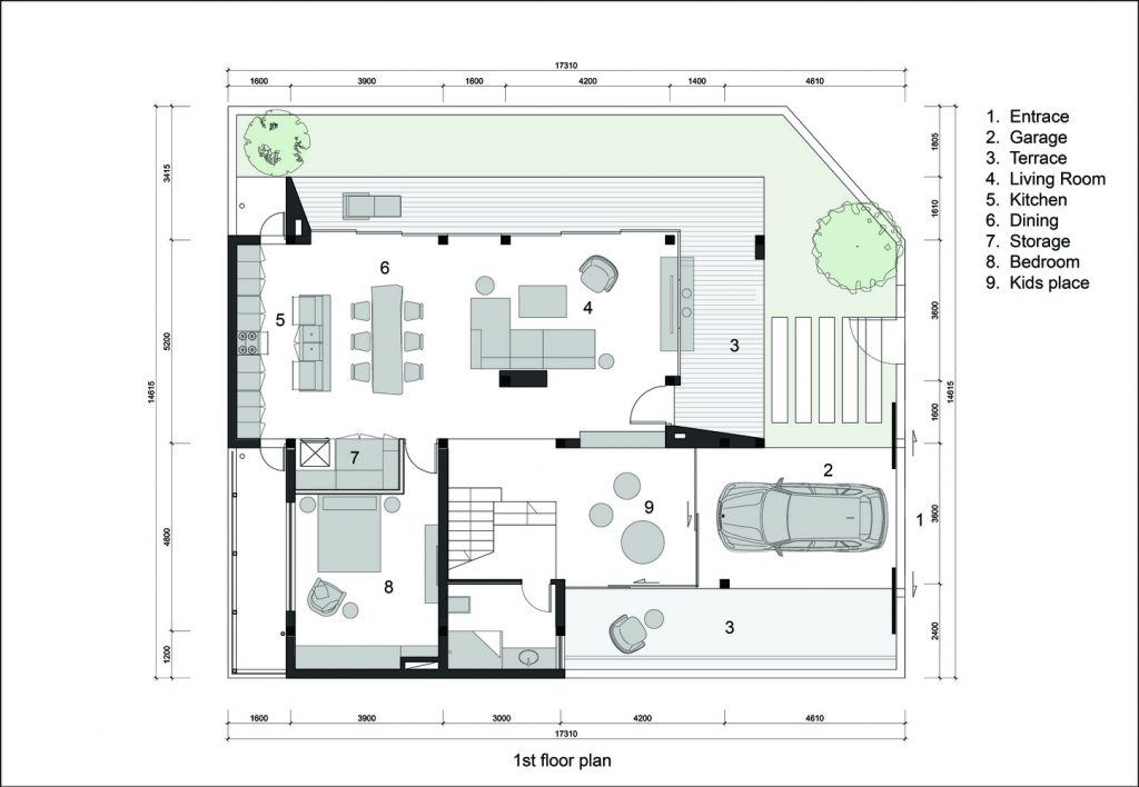
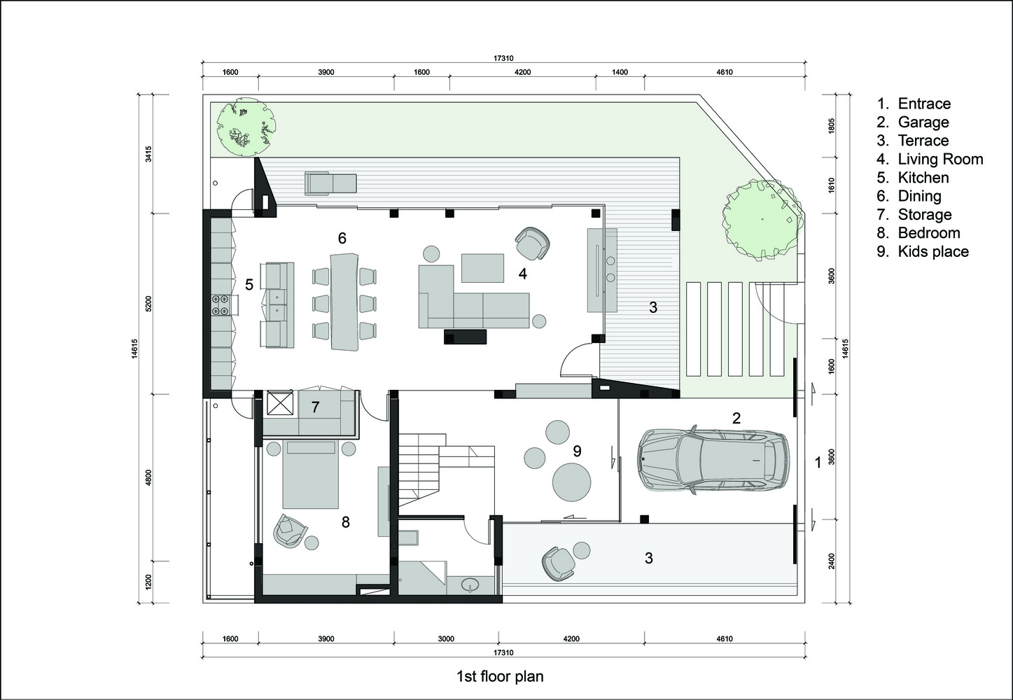
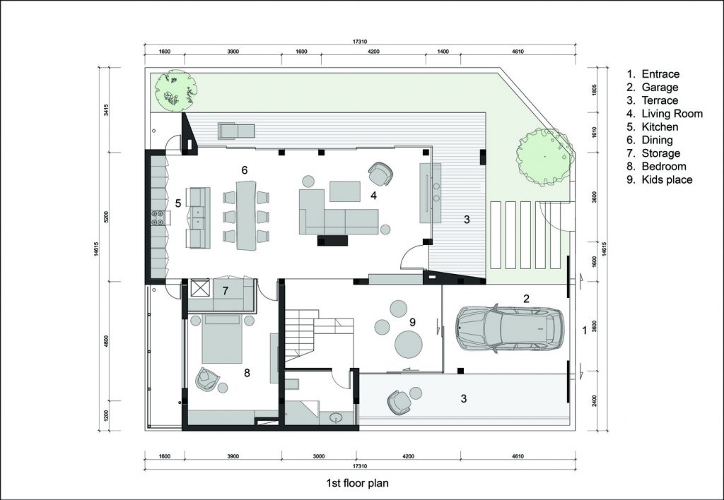
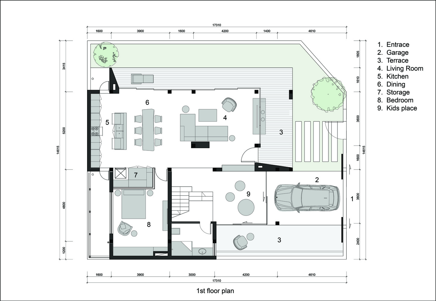
Phòng khách ở tầng 1 và nhà bếp được kéo dài bởi mái thái rộng và được tiếp nối bằng mái bê tông dài dọc theo ngôi nhà. Nhờ đó, không gian sử dụng được mở rộng và xóa ranh giới giữa bên trong và bên ngoài của khu vườn.
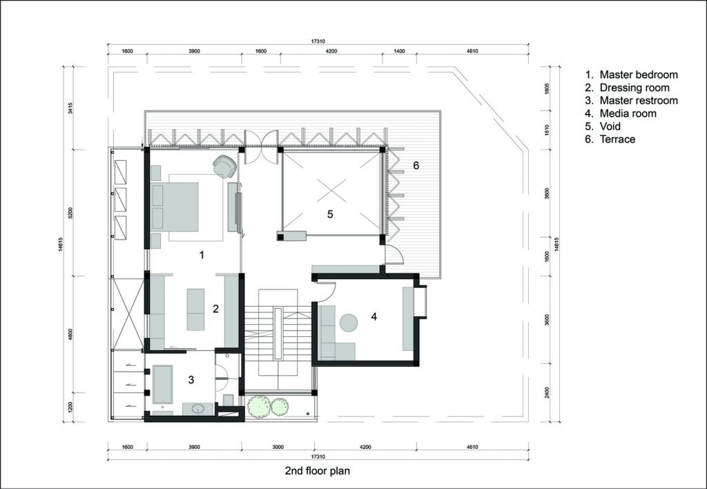
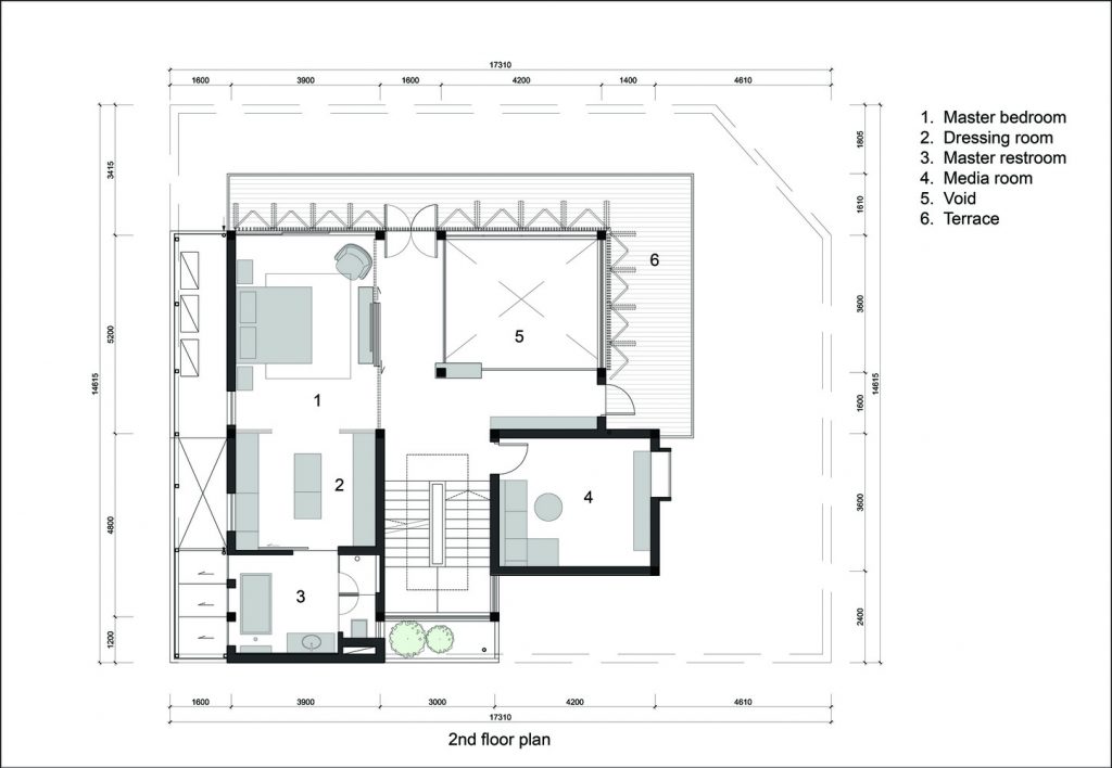
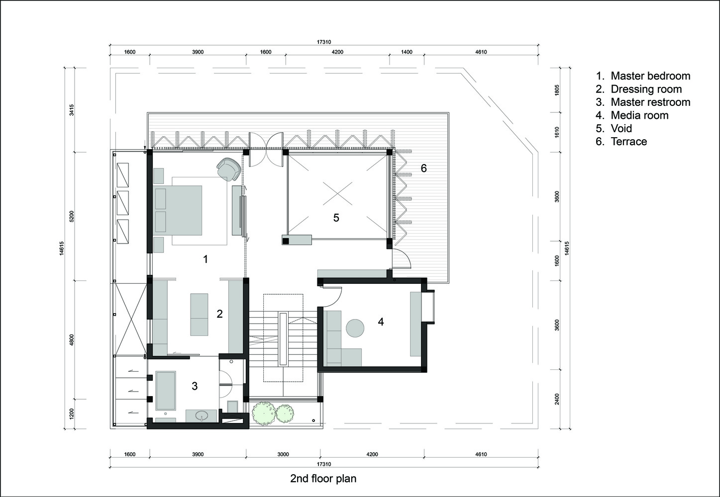
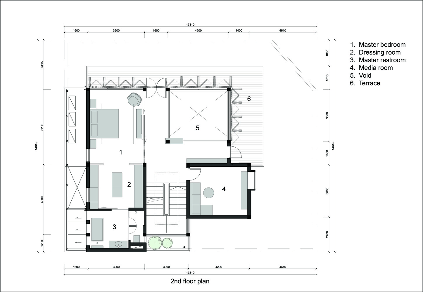
Phòng ngủ chính được bố trí linh hoạt và kết nối với tầng một bằng một không gian song lập. Khi cần thiết có thể mở rộng ra hành lang mà vẫn giữ được tầm nhìn ra đồng cỏ xung quanh.
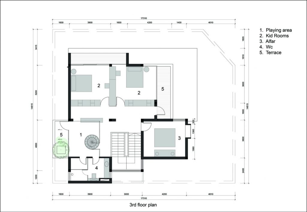
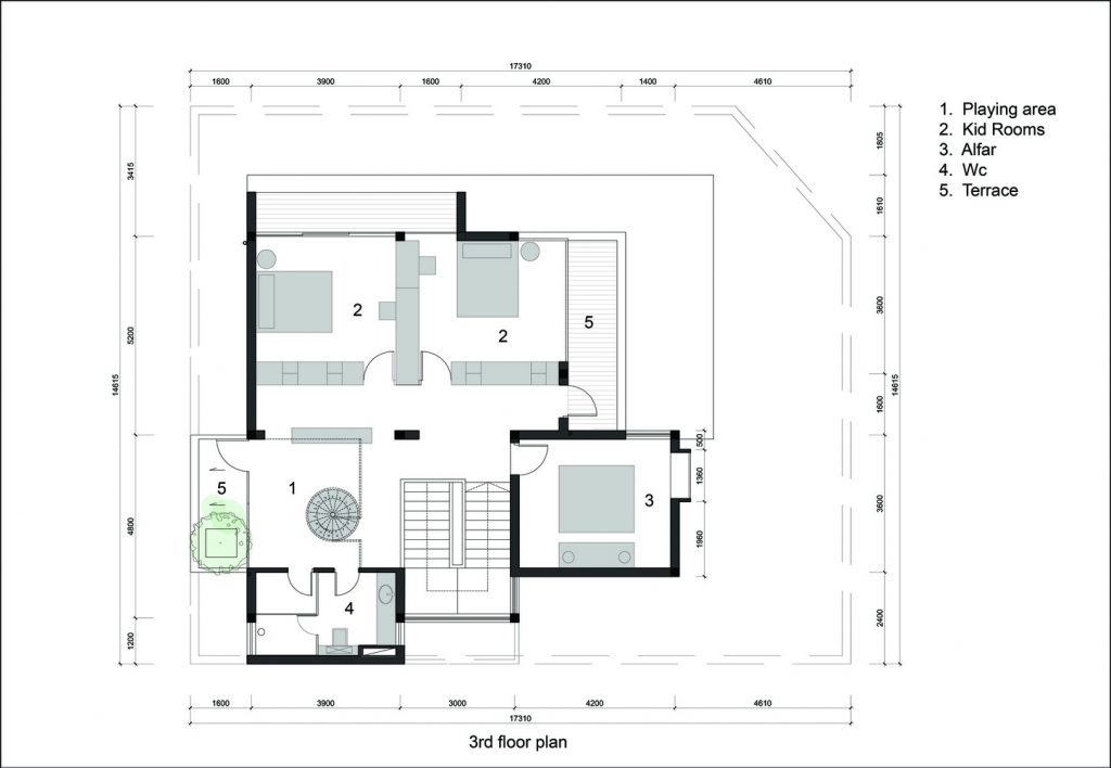
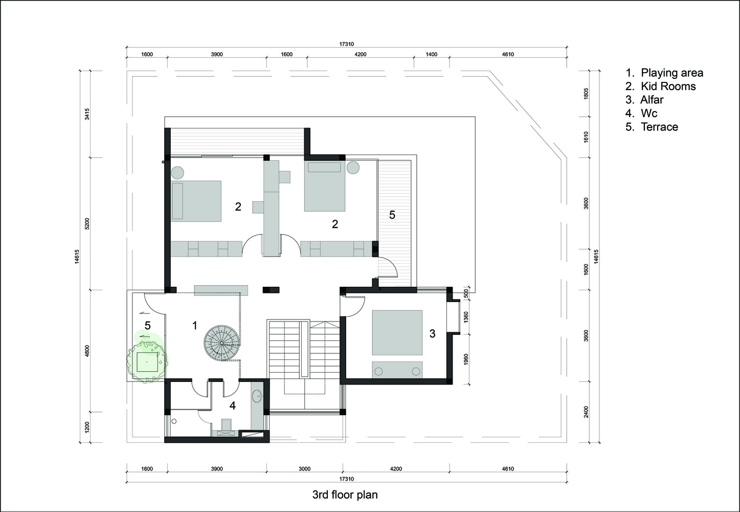
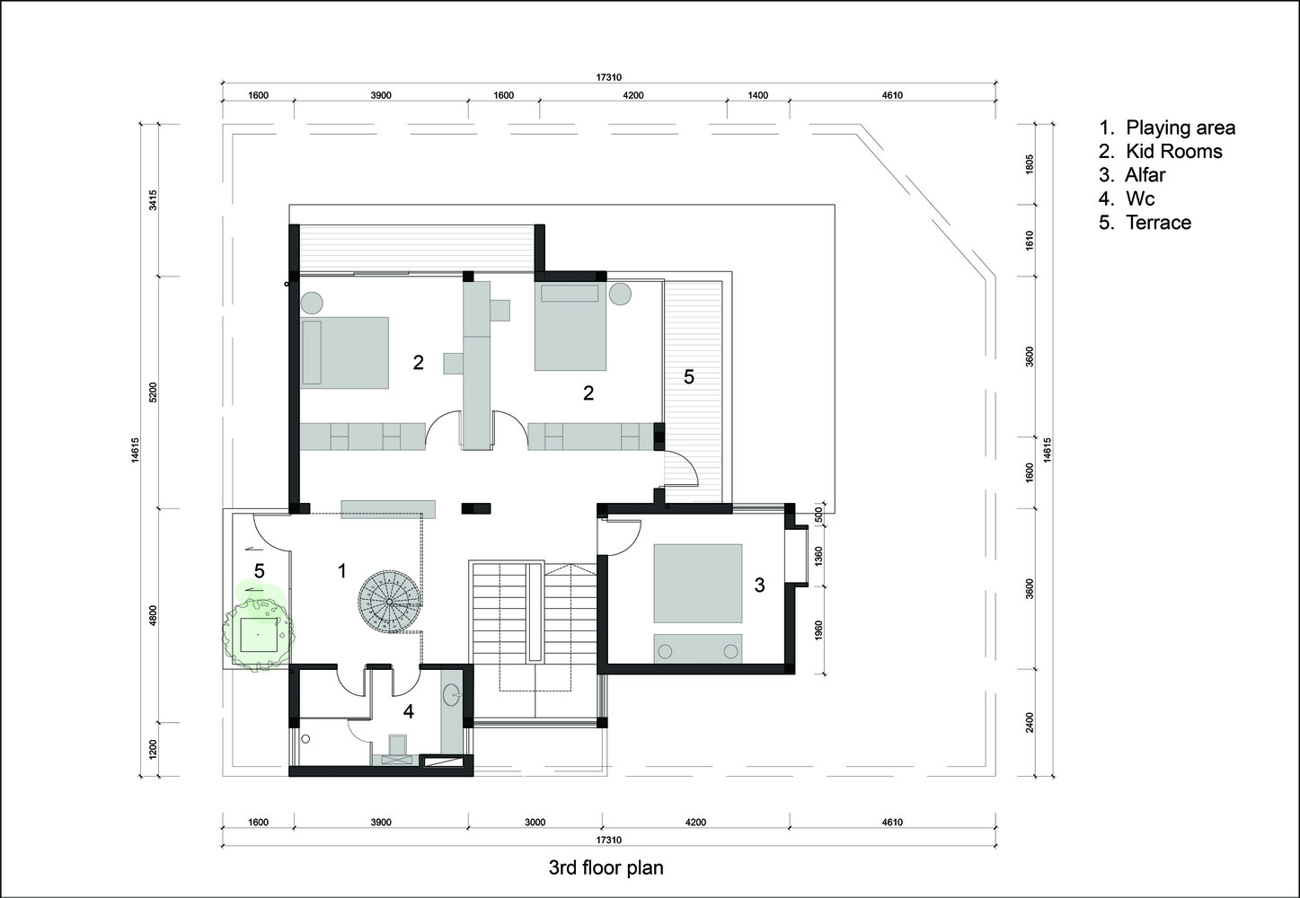
Tương tự, phòng ngủ của con trẻ ở tầng 3 cũng được liên thông với phòng vui chơi trên tầng áp mái bằng không gian thông tầng. Mái nhà bằng kính tạo sân chơi trong suốt và sáng thoáng cho trẻ nhỏ.
- Thiết kế: Idee Architects
- Diện tích: 350 m2
- Địa điểm: Long Biên, Hà Nội
- Năm: 2017
- Hình ảnh: Trieu Chien




























































Để lại đánh giá