Ngôi nhà được gia chủ quan niệm không chỉ là nơi để ở mà còn là nơi nghỉ dưỡng, nơi họ có thể tận hưởng sự bình yên cho riêng mình sau một ngày làm việc bận rộn.
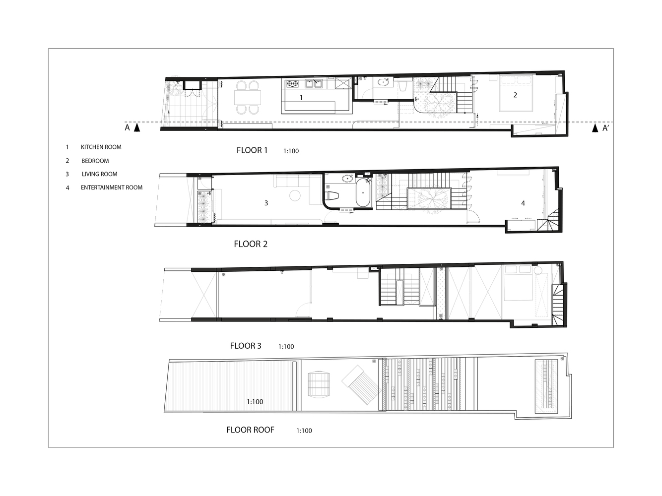
Do ít có nhu cầu về không gian sinh hoạt nên Vy Anh House được vát dần về phía trên để giảm diện tích các tầng trên. Kết quả là mặt tiền cong cho phép ánh sáng tự nhiên vào sâu trong ngôi nhà ống dài và hẹp này. Gia chủ có thể tận hưởng tầm nhìn ra ốc đảo bên trong này từ bất kỳ phòng nào trong ngôi nhà của họ.
Các viên gạch thông gió trên hệ thống lam chắn gió, được bố trí theo kiểu bất quy tắc, đảm bảo an ninh, thông thoáng và tạo điểm nhấn thẩm mỹ. Hệ thống này cũng hoạt động như một khung xương dần dần sẽ được bao phủ bởi những cây dây leo, kết quả là một bức màn cây xanh mang lại bóng mát và sự riêng tư cho ngôi nhà, như một cái kén giữa đô thị tấp nập xô bồ.
- Thiết kế: Khuon Studio
- Diện tích: 60 m²
- Địa điểm: TP. HCM
- Năm: 2019
- Hình ảnh: Thiet Vu
THAM GIA CHIA SẺ Ý KIẾN VỀ CHỦ ĐỀ NÀY CÙNG ARC VIBES



























































Để lại đánh giá