Là một quán cà phê hoàn toàn mới, được chuyển đổi từ một tòa nhà cũ từ những năm 70. Khác với những quán cà phê mang phong cách hiện đại, tân tiến thường thấy ở Đà Nẵng, The 59 Café nằm khuất cuối con hẻm nhỏ trên đường Hải Phòng.
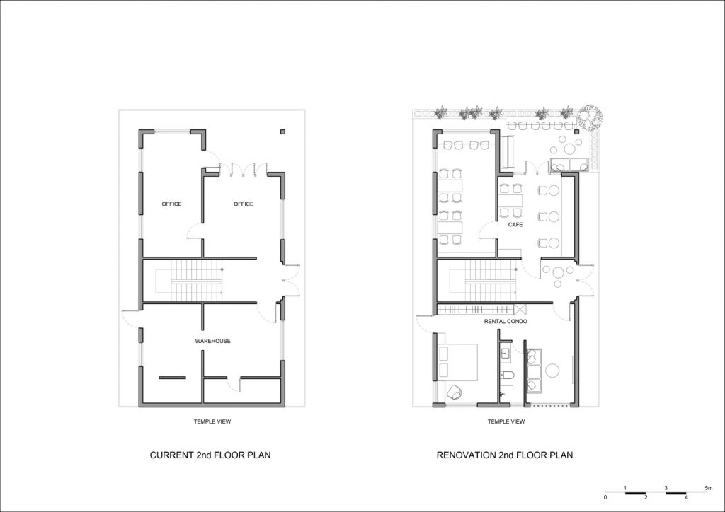
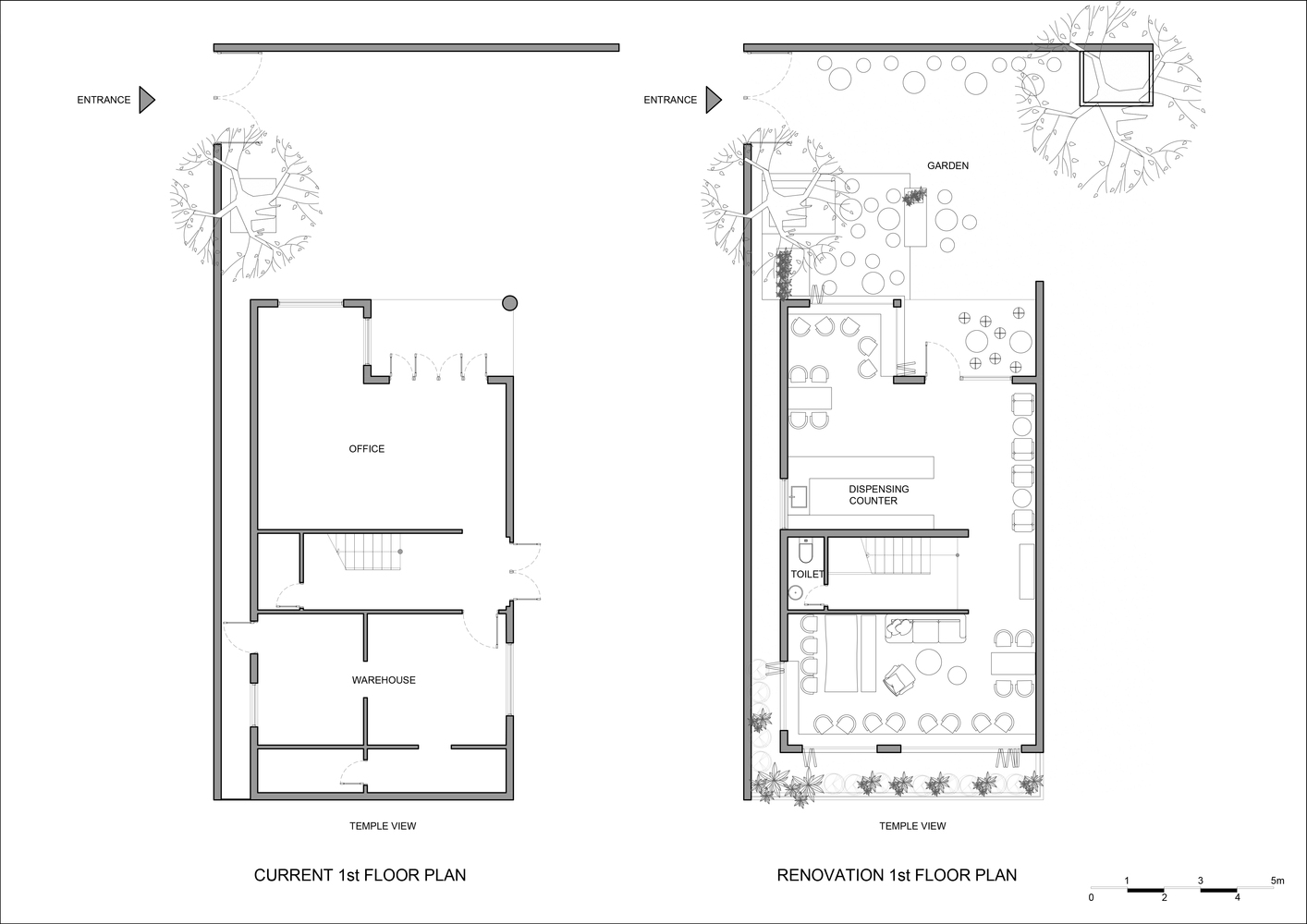
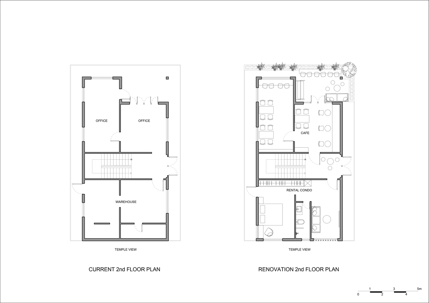
Tòa nhà cũ ít được chủ nhân sử dụng, dù có tới 3 tầng nhưng chỉ có một số phòng được cho thuê, còn những phòng khác chỉ để hoang trong vài năm. Mặc dù ý tưởng của việc chuyển đổi tòa nhà cũ này thành một quán cà phê là để phục vụ nhu cầu của thế hệ trẻ, nhưng KTS mong muốn không phá hủy những kỷ niệm của gia đình với ngôi nhà này. Vì vậy, họ quyết định giữ nguyên những vật liệu cũ như đá, gạch men và đặt chúng bên cạnh những vật liệu mới, có độ tương phản cao với bê tông và thép.
Quán có mảng xanh ấn tượng, kết nối với sân vườn cũng như tạo cho khách hàng cảm giác về một quán cà phê thân thiện với môi trường. Ngoài ra, chủ quán cũng không quên tận dụng những món đồ cũ của gia đình mình như máy ảnh, băng cassette, … Tất cả đều được đặt ở mọi góc nhỏ trong quán, vừa tạo nên chủ đề vintage, vừa để đảm bảo sự liên kết chặt chẽ giữa các không gian bên trong quán cà phê.
- Thiết kế: Viet D Architects
- Diện tích: 135 m²
- Địa điểm: Đà Nẵng
- Năm: 2020
- Hình ảnh: Tri Le
THAM GIA CHIA SẺ Ý KIẾN VỀ CHỦ ĐỀ NÀY CÙNG ARC VIBES




















































Để lại đánh giá