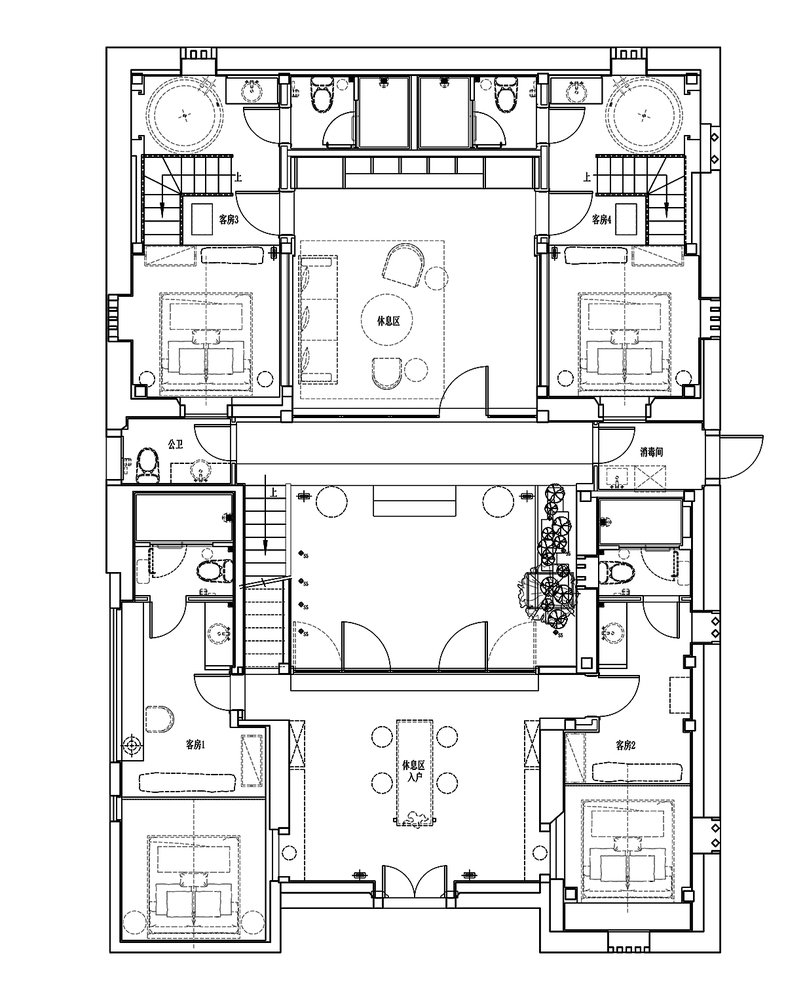
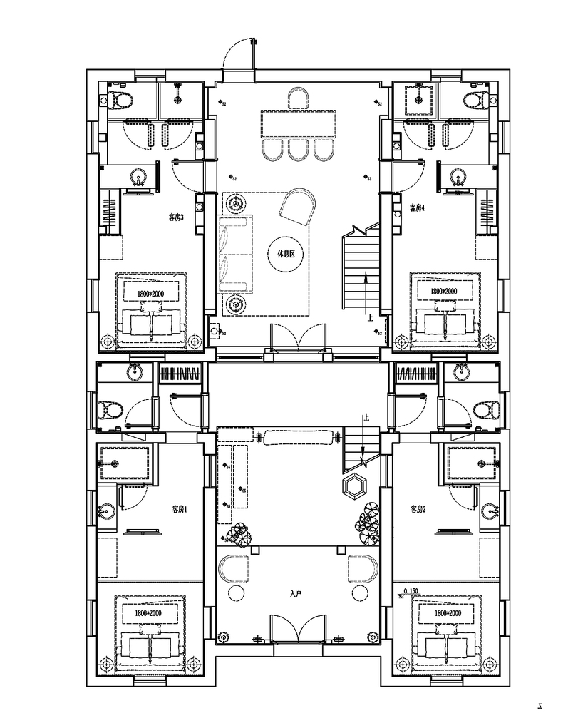
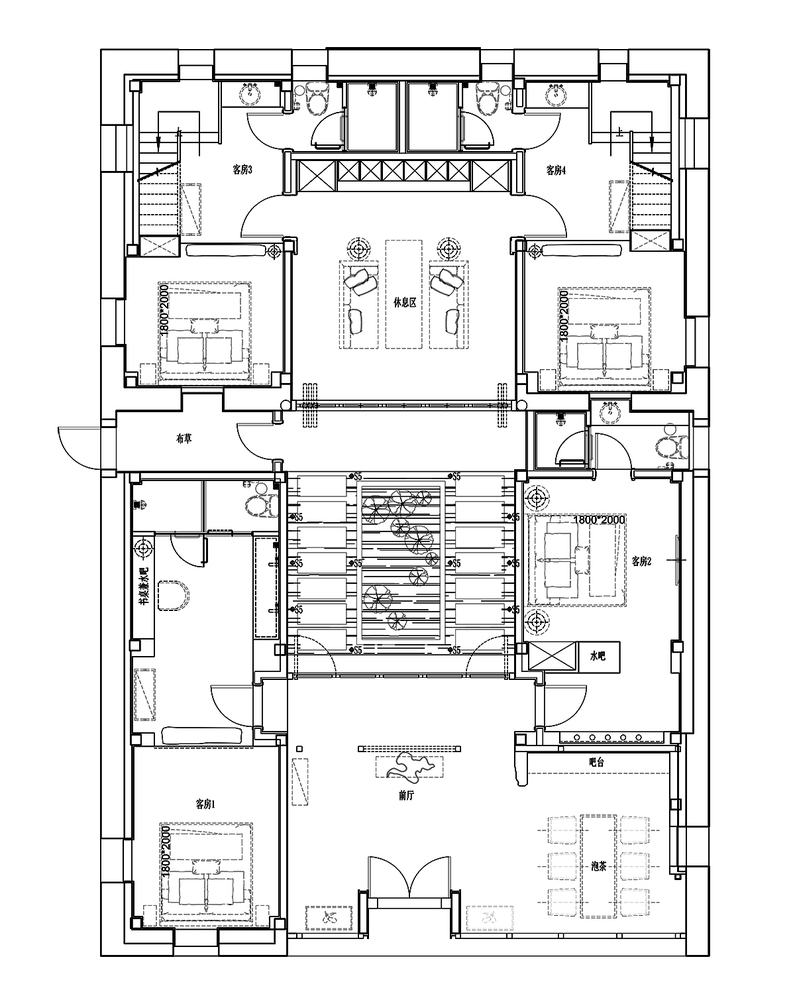
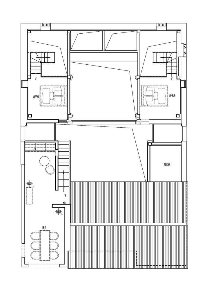
Dự án này nằm ở ngôi làng Huolongguo của quận Tường An, Hạ Môn, Trung Quốc và được tạo thành từ 3 ngôi nhà của tổ tiên và 2 tòa nhà mới.
Các ngôi nhà của tổ tiên được xây dựng vào các thời điểm khác nhau trong khoảng thời gian từ những năm 30 đến những năm 70 của thế kỷ trước cần được tân trang từ trong ra ngoài trong khi các tòa nhà mới cần được thiết kế lại nội thất.
Công trình có thiết kế tập trung vào việc tái hiện những ký ức tuổi thơ như cảnh bà ngoại già đứng chờ dưới mái hiên, những ngày bão vào mùa xuân, đom đóm vào mùa hè, hoàng hôn vào mùa thu, cảnh cây cối úa tàn vào mùa đông, bắt chạch trong ao nước, canh tứ quả, gói bánh nếp zongzi, tận hưởng không khí mát mẻ trong đêm đầy sao sau bữa tối và lắng nghe những câu chuyện cổ do những người lớn tuổi kể.
- Thiết kế: Học viện Nghệ thuật thiết kế cảnh quan và kiến trúc Trung Quốc
- Diện tích: 1200 m²
- Địa điểm: Hạ Môn, Trung Quốc
- Năm: 2019
- Hình ảnh: Aoguan Performance of Architecture


































































Để lại đánh giá