Căn nhà được bố trí thông tầng trệt, 2 lầu và 1 gác xép và được cải tạo thành một căn hộ cho thuê. Bài toán kinh tế là tạo không gian và diện tích sử dụng tối đa. Bên cạnh đó ngôi nhà còn phải dễ thi công, có dạng hình khối, chắc chắn nhưng phải độc đáo để hấp dẫn giới trẻ. Ngoài ra cũng phải tận dụng tối đa không gian xanh.

Giải pháp được đề xuất là sử dụng các cấu trúc nhẹ để thay đổi không gian bên trong; phân bổ lại công năng sử dụng: lối vào, cầu thang; và kết cấu nhẹ giúp tiết kiệm chi phí cả về vật liệu và nhân công xây dựng. Công trình được cải tạo thành 9 phòng cho thuê (phòng studio), bố trí như sau:
Tầng 1: gara, lễ tân và 1 studio.

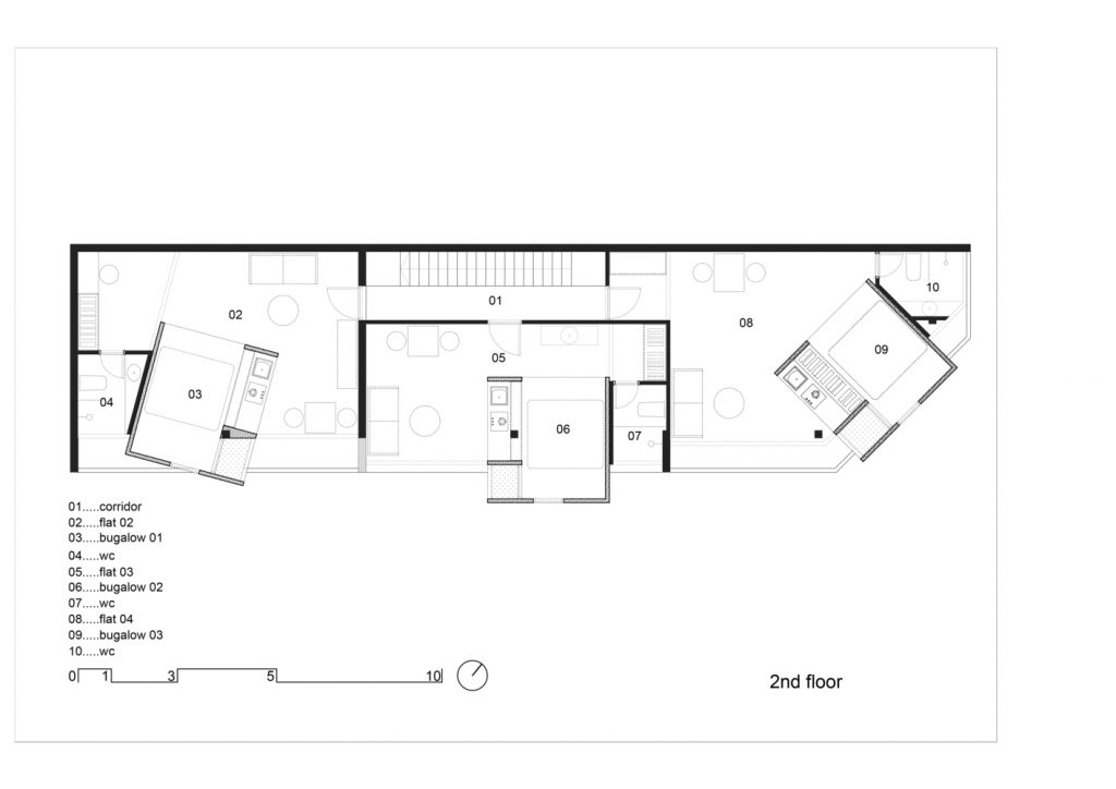
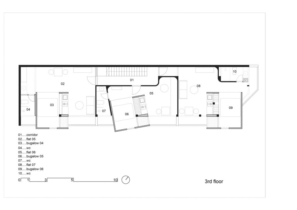
Tầng 2 và 3: Mỗi tầng gồm 03 phòng ngủ có phòng vệ sinh riêng, không gian rộng thoáng.

Tầng gác mái: cải tạo thành 02 căn hộ vip với diện tích lớn hơn và có khu giặt khô.

Vật liệu chính là khung sắt, tấm xi măng, vách sắt, kính, tất cả đều tạo nên sự linh hoạt và dễ thi công cho các công trình cải tạo. Những ngôi nhà gỗ nhiều màu sắc xoay theo nhiều hướng khác nhau tạo nên sự chuyển động mạnh mẽ, góp phần che đi các cây cột và kết cấu bê tông cũ kỹ của ngôi nhà. Tầng 2 và tầng 3 có 6 phòng, mỗi phòng là một khối bungaloư tích hợp gọn gàng các công năng: phòng ngủ, tủ quần áo, bếp.

Hai mặt tiền là lợi thế của căn hộ này nên các phòng đều có ban công 2 mặt tiền. Nếu các tầng dưới thể hiện sự năng động trẻ trung thì 2 căn hộ gác mái lại thiên về sự mộc mạc và tối giản, có mái ngói truyền thống khoe cấu trúc cho giàn, mở tầm nhìn ra vườn treo chạy dọc nhà, mang đến cảm giác không gian của một căn penthouse nhỏ. Đứng trên 2 phòng gác mái có thể phóng tầm mắt ra quang cảnh núi non của thành phố Vũng Tàu.

Căn hộ được hoàn thiện bởi nội thất gỗ, mang đến cảm giác ấm cúng. Tường sơn màu xám, chân tường được tạo điểm nhấn bằng chất liệu thép tấm và sơn chống gỉ tạo sự mạnh mẽ. Những tông màu này góp phần tạo nên điểm nhấn cho các căn hộ nhỏ năng động bên trên.
- Thiết kế: H.2
- Diện tích: 112 m²
- Địa điểm: đường Hàm Nghi, TP. Vũng Tàu
- Năm: 2020
- Hình ảnh: Quang Dam
THAM GIA CHIA SẺ Ý KIẾN VỀ CHỦ ĐỀ NÀY CÙNG ARC VIBES




























































Để lại đánh giá