KTS chia sẻ đây là dự án tâm đắc nhất cho đến thời điểm này trong cuộc đời mình. Có hai cặp vợ chồng trung niên đến nhờ tư vấn và thiết kế một duplex, đây sẽ là nơi sinh sống của hai gia đình họ. Họ là bạn của nhau, và họ thân thiết đến mức muốn dành phần còn lại của cuộc đời mình sống gần nhau. Vì vậy, họ quyết định mua một mảnh đất, xây một ngôi nhà trên đó để có thể chia sẻ những thăng trầm trong cuộc sống.

Cả hai gia đình đều yêu thiên nhiên, rừng núi và đặc biệt bán đảo Sơn Trà là báu vật thiên nhiên của thành phố Đà Nẵng. Sơn Trà là niềm tự hào của thành phố về sự đa dạng sinh học tuyệt vời và đây là quê hương của Voọc chà vá chân nâu (tên khoa học – Pygathrix Nemaeus), một trong những loài linh trưởng quý giá và sặc sỡ nhất thế giới. Hàng ngày, hai gia đình lái xe lên bán đảo để chiêm ngưỡng và khám phá thiên nhiên của nó. Họ rất gắn bó với vùng đất đầy mê hoặc này và đã mua một mảnh đất ngay sườn chân núi để xây tổ ấm và thực hiện ước muốn của mình.

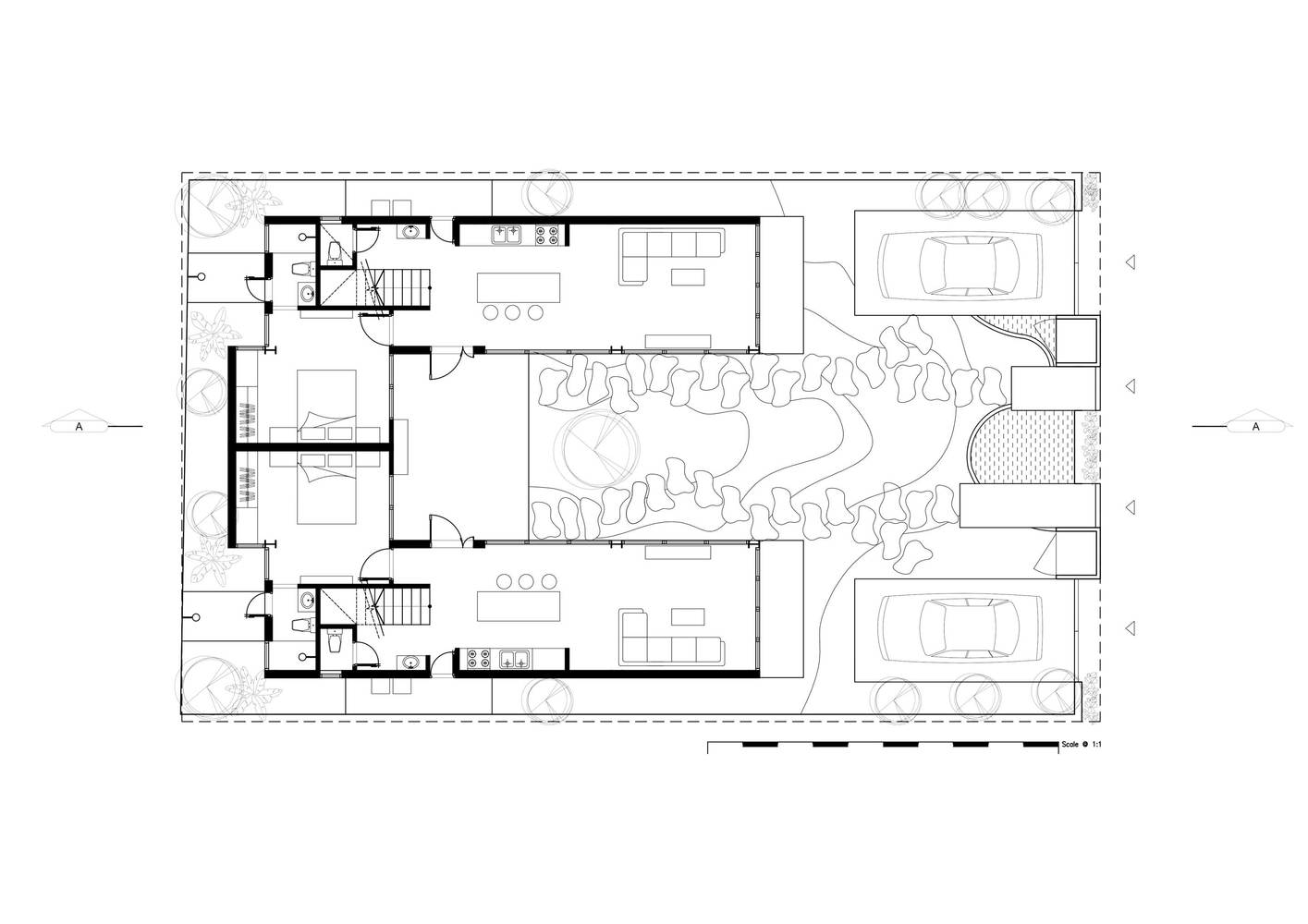
Khu đất có tổng diện tích là 380 m2, mật độ xây dựng cho phép là 40%. Khách hàng yêu cầu một ngôi nhà khá đơn giản, có cấu trúc tối giản, kết hợp hài hòa với thiên nhiên. Trong khi thiết kế bên ngoài trông giống như một ngôi nhà duy nhất từ bên ngoài; hai gia đình có thể ở riêng với diện tích riêng và chia sẻ không gian chung ở phía trong.

Thiết kế sử dụng chủ yếu là thép và gạch thô. Ngôi nhà được chia thành hai khu vực khác nhau, có chức năng và tiện nghi tương tự nhau, hoàn toàn tách biệt, đối xứng qua một khu vườn ở giữa. Sân vườn đóng vai trò là không gian trung gian giữa hai nhà đồng thời là cửa chính ra vào; Trong khi đó, mặt ngoài của toàn bộ tòa nhà tạo ra ảo giác về một ngôi nhà duy nhất.

Tầng trệt: Gồm phòng khách, phòng bếp và phòng ngủ, tất cả đều được kết nối với khu sân vườn rộng rãi, có thể tiếp cận thông qua cửa kính trượt. Với giải pháp này, bầu không khí sẽ cảm thấy rộng rãi và gần gũi với thiên nhiên hơn. Khi cửa kính được mở hết, khu vực trong nhà và khu sân vườn hòa quyện vào nhau như một, cho phép bạn hòa mình vào khí hậu núi rừng.

Tầng 1: Gồm một phòng ngủ lớn và một sân thượng rộng rãi được trang bị mái kính. Mọi người có thể nhìn thấy núi Sơn Trà trực tiếp từ phòng ngủ cũng như sân thượng, tạo cảm giác như chạm vào rừng.

Sau khi dọn về ở chung một thời gian, hai bên gia đình bày tỏ sự vui mừng và viên mãn với ngôi nhà mới. Họ chia sẻ những buổi sáng thức dậy tràn đầy năng lượng, hít thở không khí thiên nhiên trong lành và buổi chiều thư giãn quan sát những chú khỉ chơi đùa bên bìa rừng.
- Thiết kế: 85 Design
- Diện tích: 380 m²
- Địa điểm: Sơn Trà, Đà Nẵng
- Năm: 2019
- Hình ảnh: To Huu Dung, Dang Gia Khanh, Nguyen Thao My Le






















































Để lại đánh giá