[Dẫn lời KTS]
Hoa’s House là một ngôi nhà được thiết kế với triết lý “kiến trúc cảm xúc”. Kiến trúc cảm xúc nghe có vẻ xa lạ nhưng thực ra nó không hoàn toàn mới. Nó không hoàn toàn thế này hoặc thế kia mà chính như tên gọi, bản chất của nó là sáng tạo không gian từ chính những cảm xúc, cảm nhận của người thiết kế khi tiến hành nghiên cứu bố cục ngôi nhà, cùng với những mong muốn của chủ nhân của nó, tất cả sẽ trở thành một thực thể hòa quyện, không một modul hay quy tắc nào có thể định nghĩa cho sản phẩm cuối cùng.
Kiến trúc cảm xúc đơn giản là cảm giác hạnh phúc khi nhìn thấy một hình khối , màu sắc mà không cần biết mình có thích tông màu đó hay không, chính là sự giật mình và mỉm cười khi thực sự thoải mái hòa mình trong không gian đó.
Sau khi có một số cuộc gặp gỡ với chủ nhân của ngôi nhà, xem xét sở thích của họ và thảo luận, IZ Architects đã lên ý tưởng thiết kế và không gian được xây dựng từ những hình ảnh trong tiềm thức của họ.
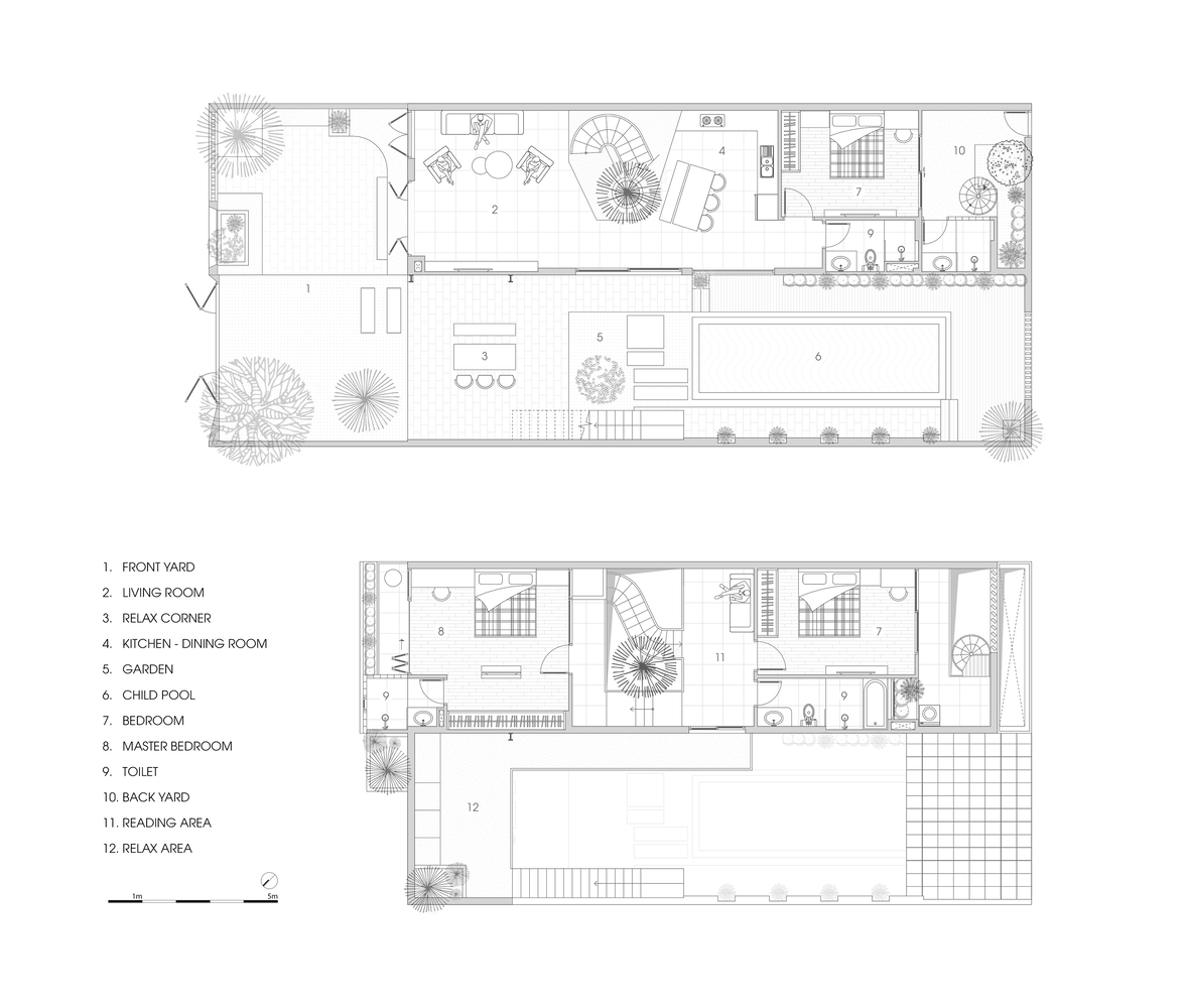
Công trình được bố trí thành một không gian mở, được kết nối trực tiếp với không gian bên ngoài. Toàn bộ không gian đệm trong nhà cùng với không gian cây xanh ngoài trời được tận dụng. Ánh nắng trực tiếp gay gắt của khí hậu nhiệt đới khi được phân tán ra bởi cây xanh đã trở nên dễ chịu hơn rất nhiều.
Không gian bên trong và bên ngoài ngôi nhà trở nên sinh động và mát mẻ với sự lưu thông không khí theo hướng bắc nam. Cả hai khu vực đóng và mở sẽ có gió chuyển động suốt cả ngày, giúp tận dụng tối đa các nguồn năng lượng tự nhiên.
Với triết lý kiến trúc cảm xúc, việc sử dụng các vật liệu cơ bản như gạch, đá, bê tông, hoặc gỗ chỉ được xem là tạo khung vững chắc cho ngôi nhà. Điều quan trọng nhất mà các kiến trúc sư lưu tâm là thổi hồn vào những vật liệu vô tri vô giác đó để gia chủ có thể tận hưởng nó mỗi sáng thức dậy, đón nhận những cảm xúc cũng như năng lượng tích cực từ nó.
- Thiết kế: IZ Architects
- Diện tích: 150 m²
- Năm: 2020
- Hình ảnh: Nguyen Cuong





































































Để lại đánh giá