[Dẫn lời KTS]
Mặc dù đã trải qua nhiều lần tu bổ trước khi được gia chủ hiện tại mua lại, hệ thống mái kèo phức tạp vẫn còn nguyên vẹn, là một viên ngọc kiến trúc thực sự. Do đó, nó được bảo tồn trong khi phần còn lại của ngôi nhà bị phá bỏ và xây mới.
Ngôi nhà với sự kết hợp khiêm tốn của tính đơn giản về hình học, bức tường bê tông trần, thánh giá bằng đồng, sự tĩnh lặng của nước, chuyển động của bầu trời mang đến một ý tưởng về sự kết nối sâu sắc với thiên nhiên và niềm tin tôn giáo của gia đình. Sự tinh khiết trong không gian làm tăng cường môi trường xung quanh, khiến tâm hồn ta hướng tới trạng thái tâm trí thiền định.
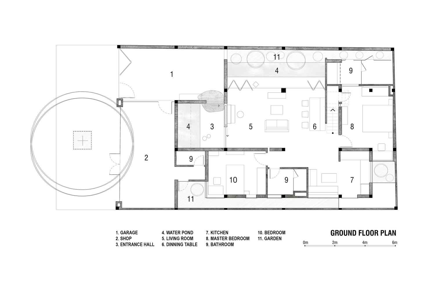
Một ngã rẽ đơn giản làm cho tầm nhìn đột nhiên được mở rộng. Hai khối chiều dọc được kết nối theo chiều ngang với khoảng thông tầng mở lớn ra hướng khu vườn ngoài trời. Các mảng tường được đặt một cách chiến lược để phân chia không gian thành các phòng chức năng. Sự đan xen hài hòa giữa bố cục theo chiều ngang với sự mở rộng theo chiều dọc làm tăng chiều sâu và cảm giác tự do về không gian. Ranh giới giữa nội và ngoại thất, không gian sống và sân vườn, dường như tan biến một cách khiêm tốn.
- Thiết kế: Kiến Trúc O
- Diện tích: 169 m²
- Địa điểm: Q.1, TP.HCM
- Năm: 2015
- Hình ảnh: Quang Trần, Hiroyuki Oki




















































Để lại đánh giá