Gia chủ đã ở đây từ khi còn nhỏ, đây là nơi sinh ra của các thành viên trong gia đình. Kế hoạch xây dựng lại ngôi nhà đã bắt đầu từ 10 năm trước, tuy nhiên, đã bị hoãn lại vì một số lý do đột xuất. Sau 10 năm, công trình được thực hiện theo một thiết kế hoàn toàn mới. Xây dựng ngôi nhà là hiện thực hóa mong muốn của gia chủ: tăng cường sự gắn kết giữa mọi người trong gia đình, đặc biệt, tạo nên một mái ấm, nơi người mẹ già của cô được tận mắt chứng kiến cảnh con cháu vui chơi, sinh hoạt với nhau.
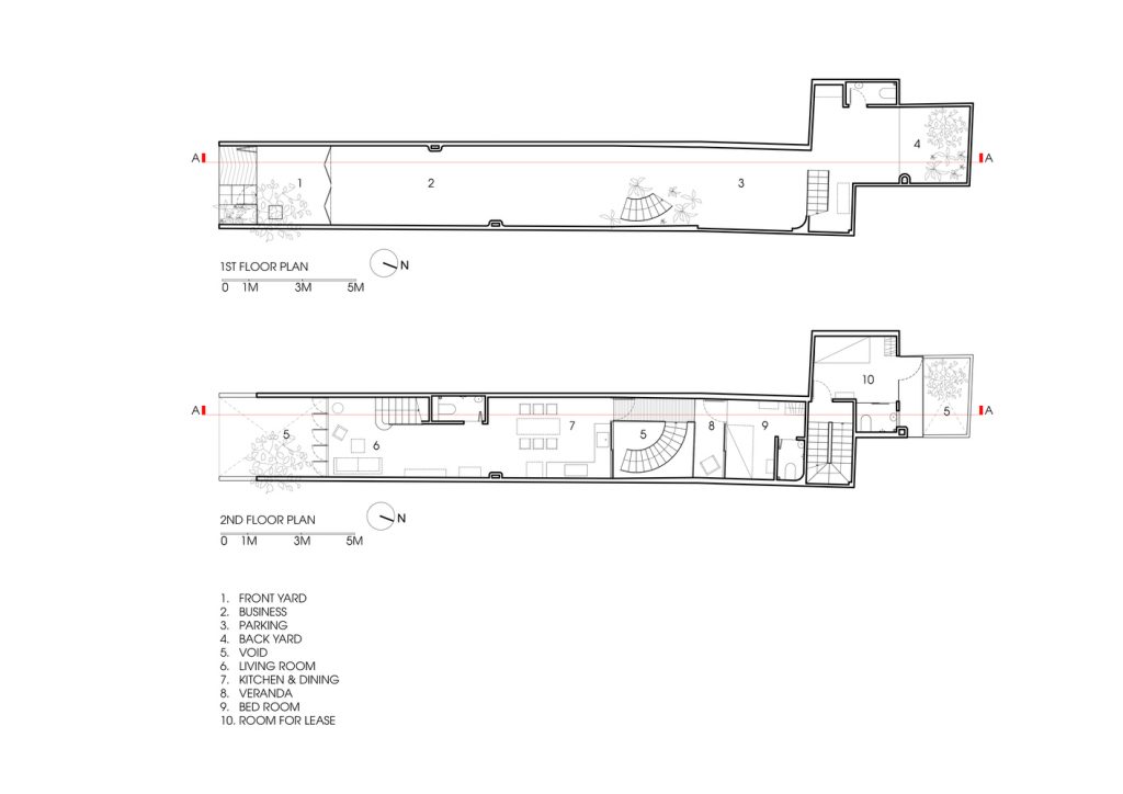
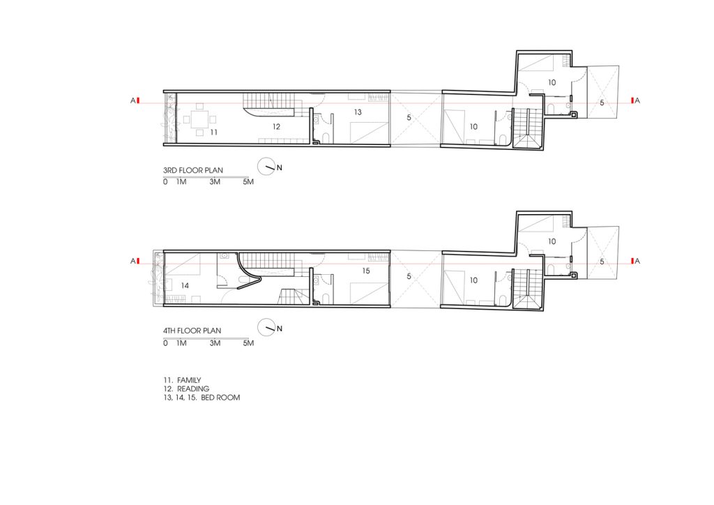
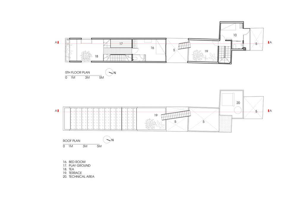
/ House được coi là một “Không gian chứa đựng”: không gian rộng lớn có nhiều ngôi nhà nhỏ hơn bên trong. Nơi đây chứa đựng hầu hết các hoạt động của các thế hệ trong gia đình. Mỗi phòng là một ngôi nhà xếp theo chiều dọc như một tổ hợp nhỏ. Tạo ra “Không gian chứa đựng” là để kết nối các gia đình nhỏ của gia đình lớn, cũng như nuôi dưỡng và chứa đựng tất cả những thay đổi của chức năng sau đó theo thời gian.
Đối với ngôi nhà này, hình thức không phải là điều quan trọng nhất mà chính là tinh thần, tình cảm và sự gắn kết giữa các thành viên trong gia đình sống bên trong.
- Thiết kế: Time Architects
- Tổng diện tích: 500 m²
- Địa điểm: Q.3, TP.HCM
- Năm: 2017
- Hình ảnh: Quang Dam



































































Để lại đánh giá