Căn nhà có diện tích 7mx20m vừa đủ để bố trí các phòng theo nhu cầu của gia chủ. Nằm ở phía đông nam của thành phố với tầm nhìn ra sông, chủ đầu tư đã dành thời gian nghiên cứu và đánh giá cao sự tư vấn của kiến trúc sư. Mặc dù vậy, ngôi nhà nằm trong khu vực quy hoạch nên tất cả các yếu tố như chiều cao xây dựng và khoảng lùi đều phải tuân theo quy định chung.
Mặt khác, chủ đầu tư rất tin tưởng và coi trọng phong thủy, nên các kiến trúc sư đã phải xử lý bên trong các không gian sống như phòng ngủ, phòng nghỉ, tủ quần áo…. phù hợp với quy tắc phong thủy.
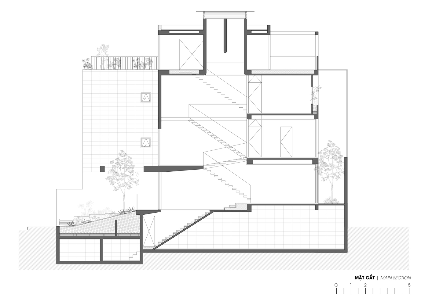
Căn nhà có kết cấu gồm một tầng hầm, một trệt, hai lầu và một sân thượng với công năng gồm gara, phòng khách, bếp và 4 phòng ngủ. Các không gian chức năng được bố trí xung quanh giếng trời lớn.
Các không gian chức năng phía trước và sau được kết nối với nhau bằng dãy cầu thang và hành lang bằng gỗ. Do nằm ở hướng Đông Nam nên ngôi nhà tránh được ánh nắng có hại và đón được luồng gió nên các phòng ngủ, bếp, phòng khách đều có hướng nhìn ra sông trước nhà.
Với kết cấu của sàn đá mài, trần bê tông, gỗ óc chó, v.v… kết hợp với nhau một cách độc đáo tạo thành một không gian ấm áp, tình cảm nhưng vẫn rất sang trọng.
- Thiết kế: H.a
- Diện tích: 140 m²
- Địa điểm: Q.7, TP.HCM
- Năm: 2020
- Hình ảnh: Quang Dam






































































Để lại đánh giá