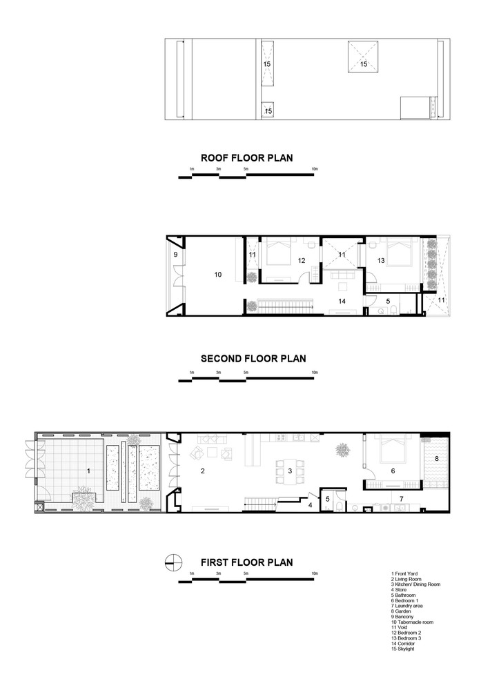
Về yếu tố cách nhiệt, không khí di chuyển liên tục trong nhà theo phương thẳng đứng tại các hành lang và theo phương ngang qua các khối gạch thông gió và các khe hở, giúp môi trường nhiệt bên trong được duy trì ở mức dễ chịu một cách tự nhiên và do đó giảm thiểu việc sử dụng quạt và điều hòa không khí cả ngày.

Về thị giác, nhờ việc tận dụng hiệu quả công năng của giếng trời, mặc dù tỷ lệ cửa sổ trên tường trung bình dưới 10%, các không gian sống và làm việc trong nhà vẫn có thể lấy được ánh sáng tự nhiên vào ban ngày. Vì vậy, nhu cầu sử dụng điện ánh sáng ban ngày là không cần thiết.

Chất lượng không khí và các mảng cây xanh được bố trí ở sân trước và sân sau như một hệ thống lọc nhiều lớp giúp giảm khói bụi độc hại từ bên ngoài ngôi nhà. Các “bộ lọc xanh” này cũng được đặt trong nhà bếp và nhà vệ sinh để ngăn mùi phát tán ra các không gian khác trong nhà. Nhờ đó, không khí trong nhà được đảm bảo trong sạch, an toàn cho sức khỏe người dùng.
- Thiết kế: C.A.T Design and Build
- Diện tích: 238 m²
- Địa điểm: TP. HCM
- Năm: 2020
- Hình ảnh: Ha Pham
THAM GIA CHIA SẺ Ý KIẾN VỀ CHỦ ĐỀ NÀY CÙNG ARC VIBES




















































Để lại đánh giá