P. House có diện tích 4,3 x 15m nằm trong hẻm, ba mặt giáp xóm còn mặt tiền phía Đông giáp nhà xưởng cũ và nhiều cây cổ thụ lớn.
Khi tiếp cận hiện trường, KTS nhận thấy sự độc đáo của khu vực với mặt tiền hướng ra không gian rộng lớn của một nhà xưởng cao hơn ngôi nhà hiện hữu 2 tầng, được bao bọc bởi tường rào và những cây cổ thụ là nơi trú ngụ của các loài chim và sóc, khiến nơi này trở nên sôi động bất kể môi trường đô thị xung quanh.
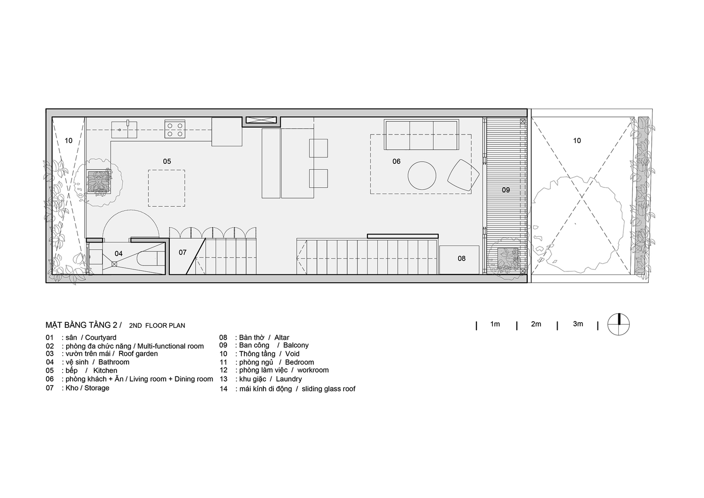
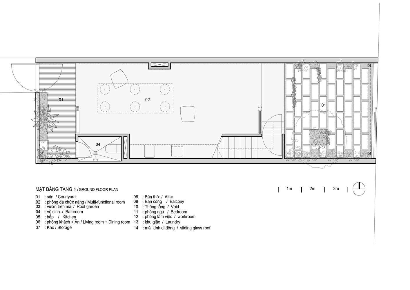
Với mục đích bảo tồn môi trường sống tự nhiên và cây xanh này, cách tiếp cận của KTS là nhường một khu vực rộng lớn để làm vườn và phủ lên mái nhà lớp thảm thực vật, hòa trộn cấu trúc nhân tạo mẹ thiên nhiên hiện có.
Với giải pháp kiến trúc 2 lớp xen kẽ cây xanh, bố trí mái kính lấy gió từ phía sau nhà sẽ giúp ngôi nhà này luôn có cảm giác sảng khoái và tránh bị ánh nắng chiếu trực tiếp. Không gian sống được bao phủ bởi nhiều lớp gạch và cây xanh. Do đó, sự phụ thuộc vào việc sử dụng điều hòa sẽ giảm đi đáng kể.
Vật liệu sử dụng là vật liệu bền vững, gạch mộc, trần bê tông, gỗ tự nhiên để không gian sống gắn bó với thiên nhiên.
- Thiết kế: T H I A Architecture
- Diện tích: 64 m²
- Năm: 2021
- Hình ảnh: Quang Chan
THAM GIA CHIA SẺ Ý KIẾN VỀ CHỦ ĐỀ NÀY CÙNG ARC VIBES





























































Để lại đánh giá