Chủ nhân của HL-House là một gia đình trẻ ba người, với mong muốn có một không gian sống tràn ngập ánh sáng và thông gió tự nhiên, họ muốn tránh xa cuộc sống đô thị ngột ngạt sau cả ngày dài làm việc. Hạn chế của ngôi nhà là mặt tiền hẹp, dưới 4m, giải pháp được KTS lựa chọn là mở khoảng thông tầng lớn ở trung tâm ngôi nhà, cung cấp ánh sáng tự nhiên cho tất cả các không gian và các phòng, khoảng trống cuối nhà làm khoảng thông gió.
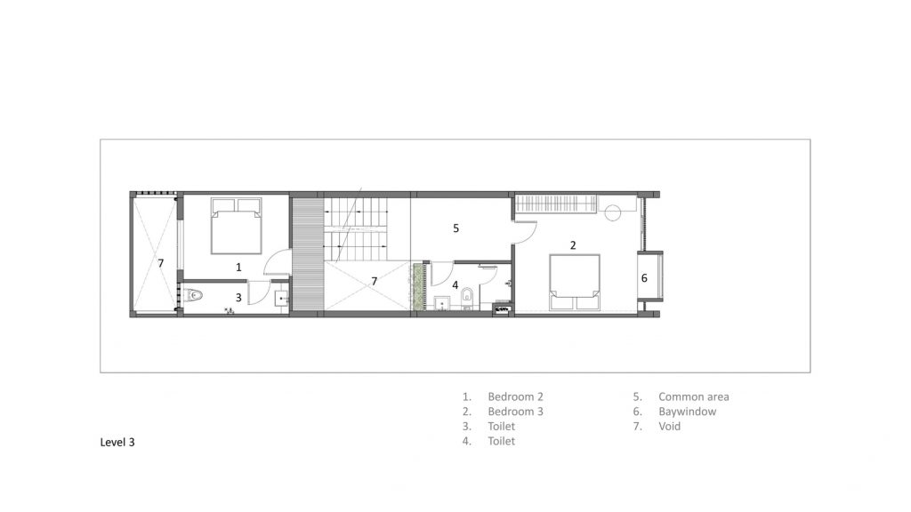
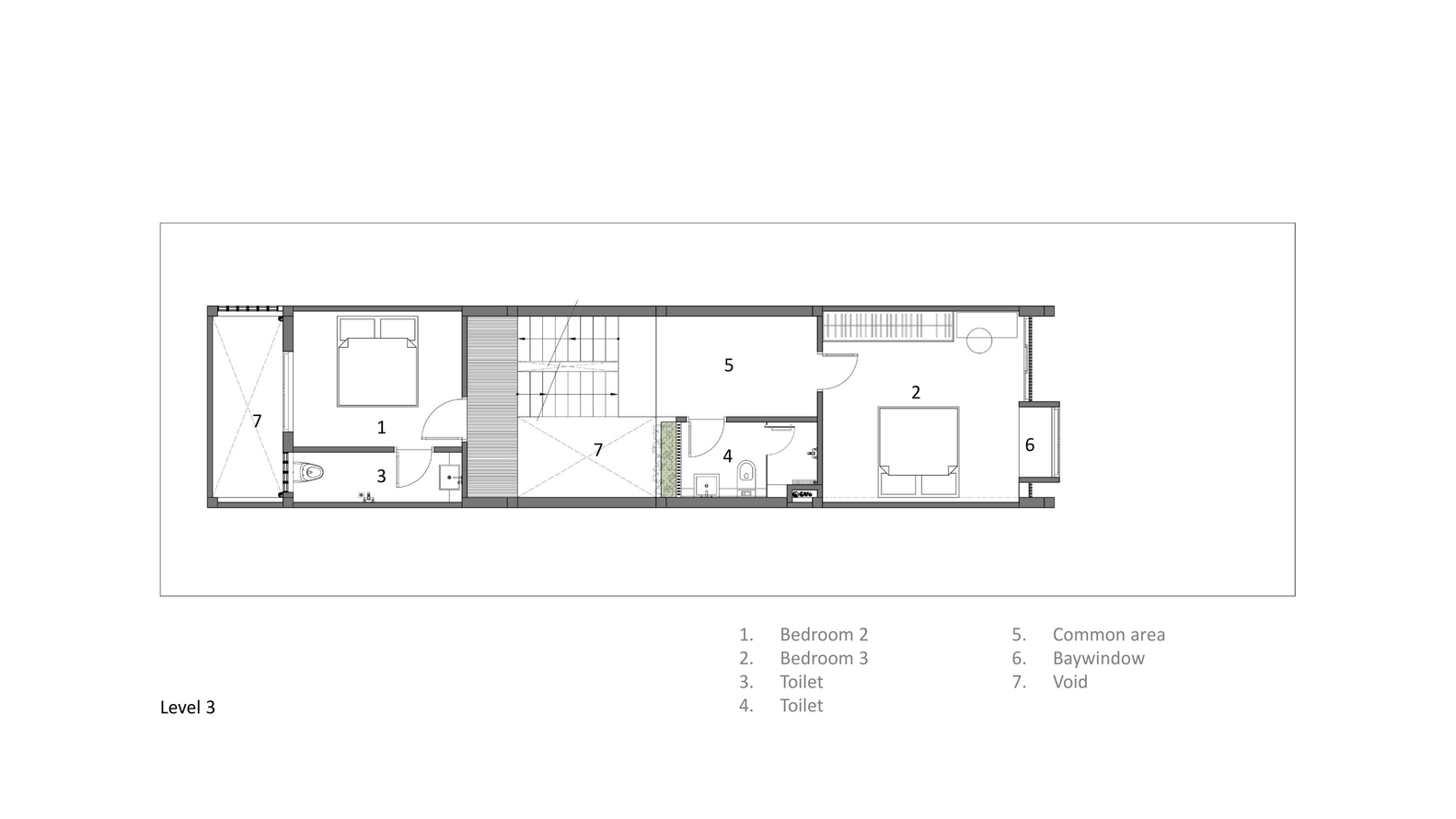
Tiêu chí là diện tích vừa đủ cho các phòng, gần 1/3 diện tích xây dựng được dùng chung cho giếng trời. Chất liệu bậc cầu thang là gỗ với kết cấu thép, chất liệu sàn hành lang là thanh gỗ, gạch đỏ cổ kính cho toàn bộ phần tường tại giếng trời, đây là không gian kết nối cho tất cả các khu vực trong nhà. Mọi người có thể giao tiếp với nhau thông qua khoảng trống này.
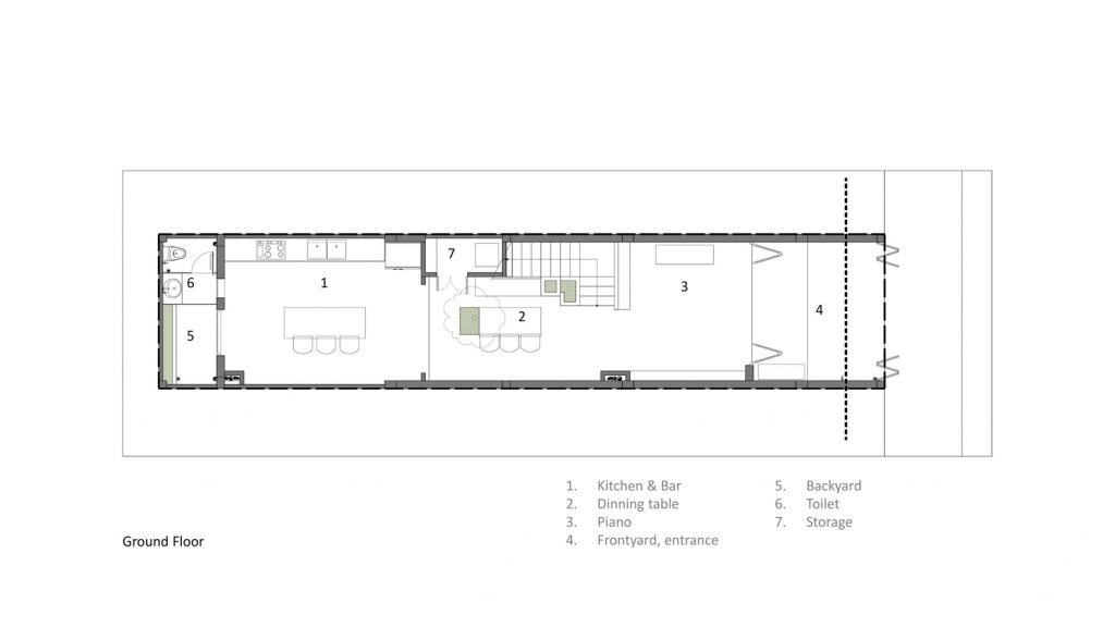
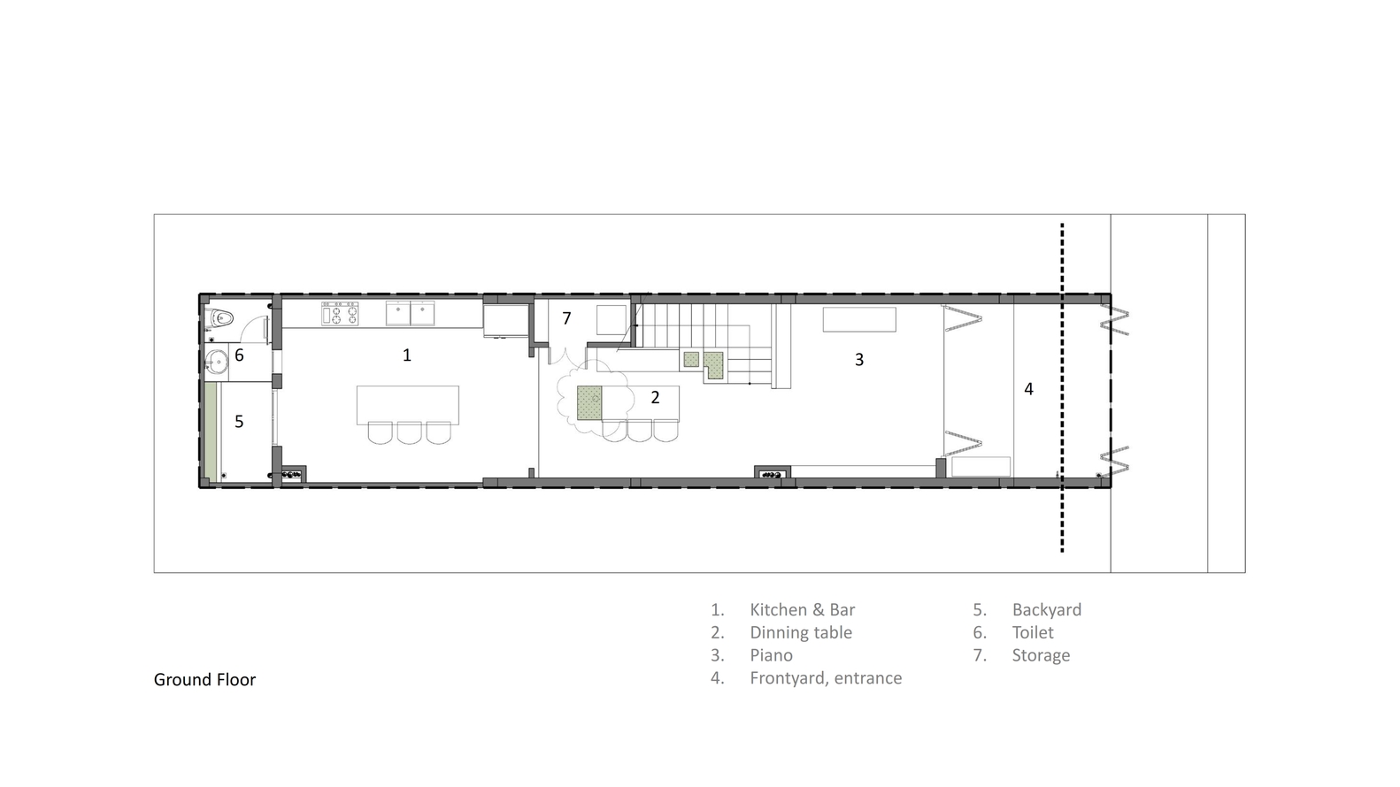
Tầng trệt bắt đầu với lối vào, không gian để đàn piano, khu vực chính là bếp và quầy bar phía sau nhà, bàn ăn được đặt tại khu vực giếng trời. Trong khi đó, phòng khách được đặt ở tầng lửng để giải phóng diện tích cho tầng trệt. Nơi đây có hướng nhìn ra cửa chính, phòng ngủ chính, diện tích này phù hợp với nhà lệch tầng, tạo thêm không gian sinh động trong ngôi nhà.
Tất cả các không gian chức năng trong ngôi nhà đều được tiếp xúc với ánh sáng tự nhiên, thông gió và cây xanh, đây cũng là điều mong muốn ngay từ khi bắt đầu thiết kế của gia chủ và kiến trúc sư.
Diện tích hạn chế và khó đi trong ngõ hẹp là nhược điểm chung của nhà phố tại Việt Nam, đặc biệt là trong khu dân cư cũ. Cách duy nhất để tạo ra một không gian sống thực sự nếu bạn muốn đón gió và nắng vào ngôi nhà là bớt đi một phần diện tích xây dựng.
- Thiết kế: Chi.Arch
- Diện tích: 250 m²
- Địa điểm: Bình Thạnh, TP.HCM
- Năm: 2020
- Hình ảnh: Thanh Pham, Chi.Arch
THAM GIA CHIA SẺ Ý KIẾN VỀ CHỦ ĐỀ NÀY CÙNG ARC VIBES

































































Để lại đánh giá