T House được thiết kế cho một gia đình ba thế hệ với sáu thành viên, gồm vợ chồng chủ nhà, 2 con, mẹ vợ và chị gái.
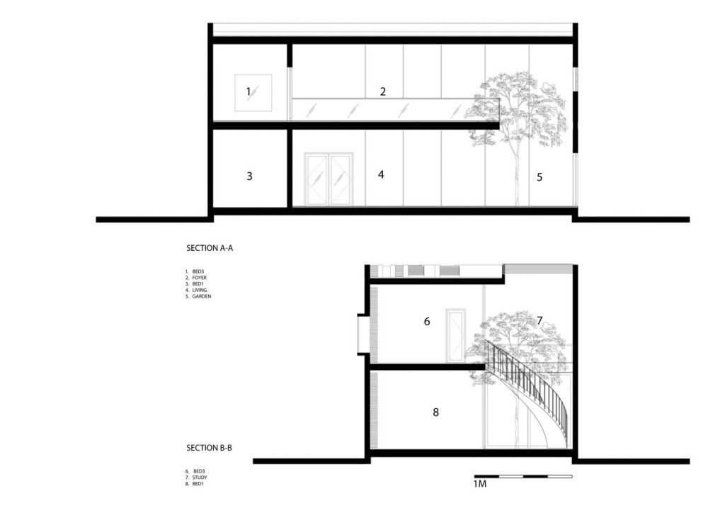
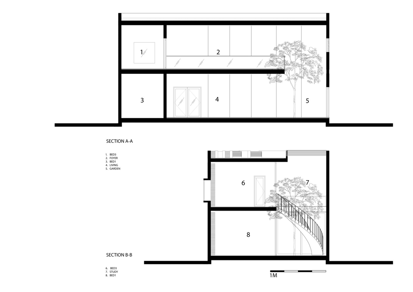
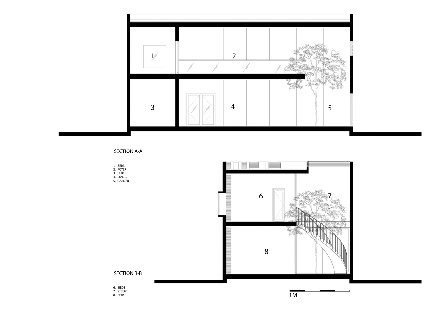
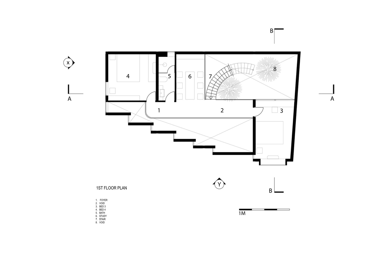
Ngôi nhà được xây dựng trong một khu đất hình tứ giác ở Bình Dương với mặt tiền quay về hướng Tây. Mặt tiền của T House được chia thành 7 bức tường vững chắc được kết nối bằng kính và cửa gió để đón ánh sáng tự nhiên đồng thời giúp cho ngôi nhà thông thoáng.
Ngoài ra, gia chủ cũng chia sẻ rằng cô rất sợ ở một mình, nên cô muốn mọi người trong gia đình có thể dễ dàng nhìn thấy nhau khi ở nhà. Do đó, KTS đã xen kẽ giữa không gian riêng và không gian chung bằng cách đưa hai khoảng không gian xanh thành 2 khối kiên cố, nhằm kết nối mọi không gian trong nhà để tăng tính tương tác của các thành viên trong gia đình.
- Thiết kế: Creative Architects
- Diện tích: 160 m²
- Địa điểm: Dĩ An, Bình Dương
- Năm: 2017
- Hình ảnh: Hiroyuki Oki
























































Để lại đánh giá