[Dẫn lời KTS]
The Cities & Gardens là tòa nhà 7 tầng tọa lạc tại một vị trí đẹp gần trung tâm TP.HCM. Tòa nhà bao gồm một quán cà phê; tám dãy phòng cho thuê; và một khu vườn trên sân thượng. Khu đất này bao gồm hai lô đất giống nhau có diện tích 4×22 mét, mỗi lô nhìn ra một công viên nhỏ. Tòa nhà được chia thành hai phần liền kề với chủ sở hữu là hai anh em, phần thứ nhất của tòa nhà được xây dựng trước 6 tháng do điều kiện kinh tế của gia chủ.
KTS đề xuất khái niệm “Cities & Gardens” với ý định tạo ra một tòa nhà không chỉ phản ánh sự sống động và đa dạng của thành phố mà còn gắn kết với thiên nhiên tươi mát. Các không gian nội thất và hình thức xây dựng được thiết kế với cảm hứng lấy từ một số thành phố nổi tiếng trên thế giới.
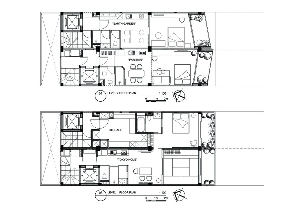
Mặt tiền của tòa nhà bao gồm một loạt các khối góc cạnh, mỗi khối được hoàn thiện với thiết kế riêng biệt để thể hiện sự đa dạng và cá tính của các dãy phòng trong khi vẫn duy trì một hình thức xây dựng nhất quán. Không gian nội thất của mỗi căn hộ cũng có thiết kế độc đáo với việc sử dụng sáng tạo hình thức, chất liệu, màu sắc và chi tiết.
Tokyo Home là một không gian yên tĩnh với kinh nghiệm thiết kế học hỏi từ kiến trúc Nhật Bản trong khi Parisian Suite tái hiện sự lãng mạn và sang trọng của kiến trúc Paris theo cách hiện đại hóa. Earth Garden được thiết kế độc đáo theo phong cách bản địa của Việt Nam từ các vật liệu địa phương. Nội thất của Copenhagen Attic mang đến sự ấm cúng bằng cách sử dụng gỗ sồi và đồ nội thất mềm mại.
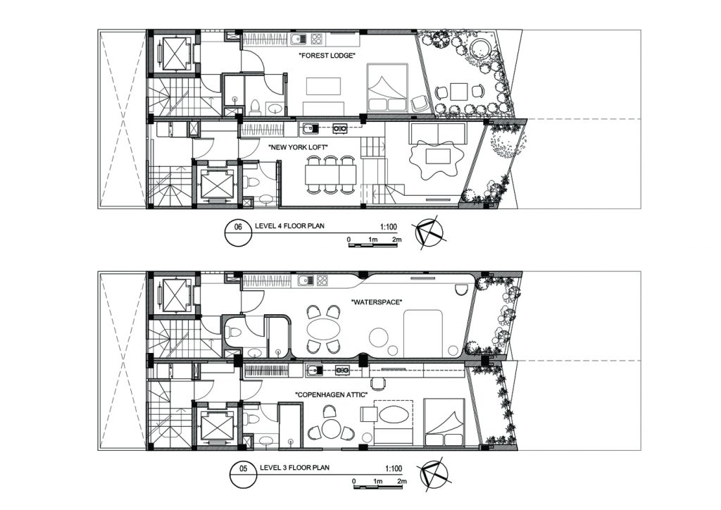
The Waterspace được lấy cảm hứng từ vùng nước trong trí tưởng tượng được hoàn thiện bằng vật liệu trong suốt. The Loft sử dụng các vật liệu thô và công nghiệp gợi nhớ lại gác xép những năm 1950 ở New York. The Forest Lodge có nội thất bằng gỗ và một khu vườn lớn giống như khu rừng với nhiều loại cây trồng và đồ đạc ngoài trời. The Saigonese Terrace ở tầng trên cùng được hoàn thiện bằng các vật liệu truyền thống và địa phương như gạch xi măng, màn tre, gạch nung trắng và có sân hiên “kiểu Sài Gòn” trồng đầy các loại thảo mộc, rau và cây ăn quả địa phương.
Cuối cùng, một quán cà phê kết hợp không gian làm việc chung nằm ở tầng trệt và tầng lửng, cũng như khu vườn trên sân thượng là nơi tất cả khách thư giãn, ăn uống, thỉnh thoảng gặp nhau hoặc tại các sự kiện do ban quản lý tòa nhà tổ chức.
- Thiết kế: ROOM+ Design & Build
- Tổng diện tích: 810 m²
- Địa điểm: Q.3, TP.HCM
- Năm: 2019
- Hình ảnh: SM Art Studio

























































Để lại đánh giá