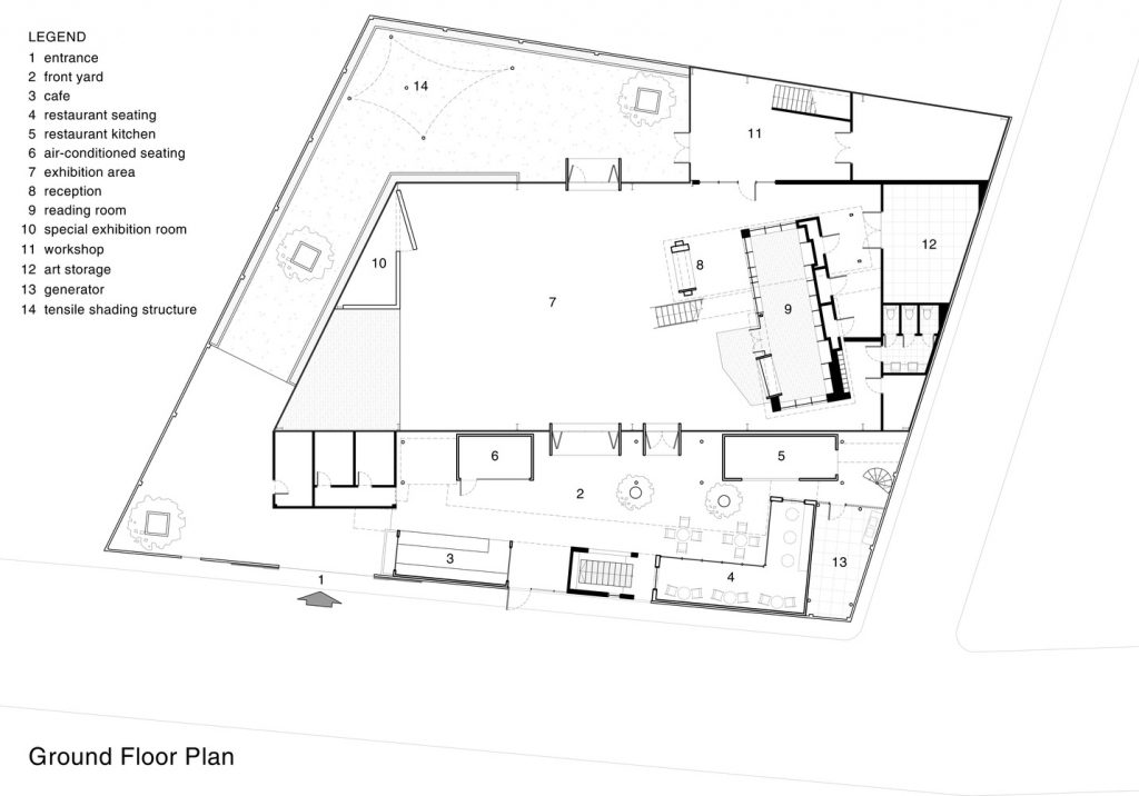
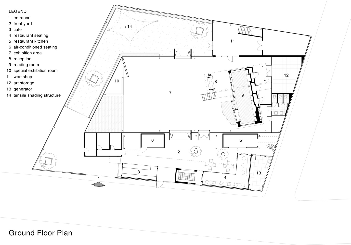
Nằm tại khu vực Thảo Điền, Q.2 cách xa trung tâm thành phố, The Factory tựa như một ốc đảo tách biệt với thế giới xô bồ, vồn vã bên ngoài. Đập ngay vào mắt bạn khi đến The Factory đó chính là vẻ ngoài với cấu trúc ấn tượng khi sử dụng một loạt những container để làm nên không gian phía ngoài cực chất và bắt mắt.
Bên cạnh việc trưng bày các tác phẩm nghệ thuật dưới nhiều hình thức khác nhau như tranh vẽ, tượng điêu khắc, công trình nghệ thuật sắp đặt… thì The Factory còn là nơi tổ chức các buổi gặp gỡ giữa những nghệ sĩ lớn trong nghề và là nơi diễn ra các buổi workshop để mọi người cùng được học tập, trau dồi thêm về tư duy nghệ thuật.
- Thiết kế: HTAP Architects
- Diện tích: 880 m²
- Địa điểm: 15 Nguyễn Ư Dĩ, Thảo Điền, Quận 2, TP.HCM
- Năm: 2017
- Hình ảnh: Hiroyuki Oki
- Vào đây để xem thêm thông tin về giờ mở cửa và vé vào cổng: https://factoryartscentre.com/en/contact/






















































Để lại đánh giá