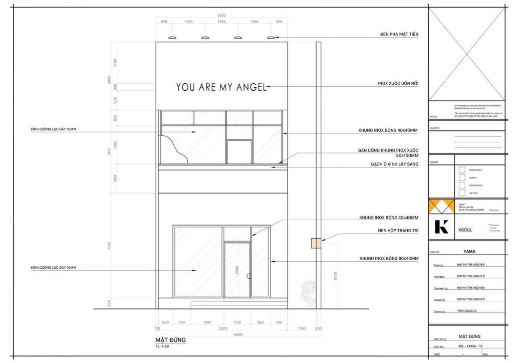
Thiết kế của địa điểm mới này được lấy cảm hứng từ nhận diện thương hiệu ban đầu của YAMA – You Are My Angel, chọn ra một số hình ảnh bổ sung thú vị trong khi cố gắng giữ lại những hình ảnh đã quen thuộc với đa số những người ủng hộ, tạo ra một sự mới mẻ nhưng vẫn kết nối chặt chẽ với các giai đoạn phát triển của thương hiệu.
Tây Ninh đang trong quá trình hiện đại hóa, vì vậy đội ngũ thiết kế ở Ksoul quyết định sử dụng gam màu xám xi măng thể hiện ý tưởng đô thị hóa và màu vàng là màu thương hiệu và cũng là lời nhắc nhở tới xứ sở được mệnh danh là “nắng cháy da người” này. Ngoài ra, hai màu này cũng là màu sắc đang thịnh hành và được Pantone bình chọn là màu của năm 2021.
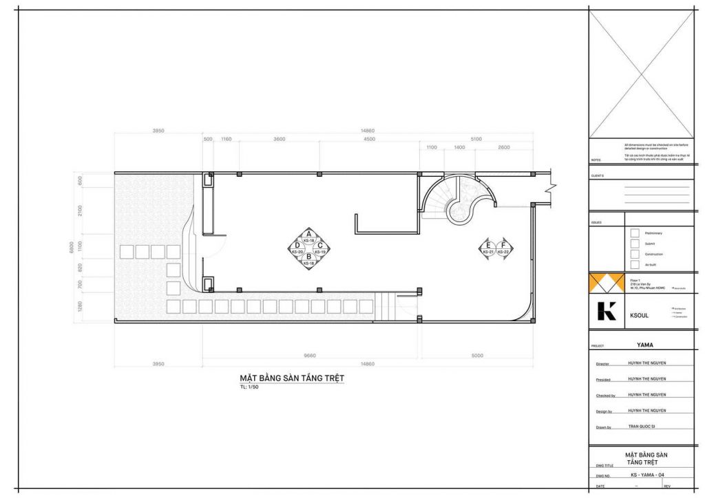
Để tạo ra một không gian tươi mới mang hơi hướng công nghiệp và hiệu ứng ánh sáng ấn tượng, Ksoul đã đưa vào sử dụng ba loại vật liệu quan trọng là xi măng, bê tông và thép không gỉ. Khu vực quầy bar là khu vực đầu tiên được hoàn thiện bằng xi măng và được ốp bằng thép không gỉ cho phép nó tỏa sáng rực rỡ đối với bất kỳ khách hàng nào ngay khi họ đặt chân vào cửa hàng.
Một điều đặc biệt ở dự án là phần lớn đồ đạc nội thất được đặt làm riêng và sản xuất riêng cho thương hiệu này. Bàn inox ngoài sân, ghế dài, ghế đôn hay thậm chí là bàn làm việc lớn trên tầng 2 đều được đo đạc và sắp xếp một cách tỉ mỉ để đáp ứng các yêu cầu về cấu trúc và chức năng.
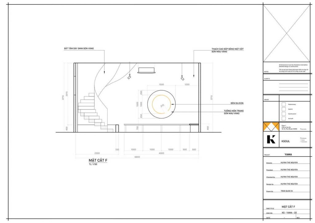
Ngoài ra, bạn sẽ dễ dàng nhận ra rằng cửa hàng rất rộng rãi và thoải mái nhờ ứng dụng hệ thống đèn chiếu sáng và lắp đặt gạch kính giúp nơi này hấp thụ ánh sáng tự nhiên từ bên ngoài và làm nổi bật khu vực trung tâm màu vàng.
Sơn epoxy màu vàng đồng với màu tường và cầu thang xoắn ốc dẫn lên tầng 2, mang đến điểm nhấn đột phá nhưng vẫn liên kết với hình ảnh YAMA xung quanh không gian.
- Thiết kế: KSOUL Studio
- Diện tích: 195 m²
- Địa điểm: 222 Võ Thị Sáu, Khu phố 5, TP. Tây Ninh
- Năm: 2021
- Hình ảnh: Valor Studio


































































Để lại đánh giá