[Dẫn lời KTS]
Lấy cảm hứng từ phong cách kiến trúc hiện đại của Villa Savoye và sự phóng khoáng của kiến trúc bản địa, 911 Villa được thiết kế cho phong cách sống đương đại tối giản của người trẻ giàu có, với bộ sưu tập xe “khủng” tại TP.HCM.
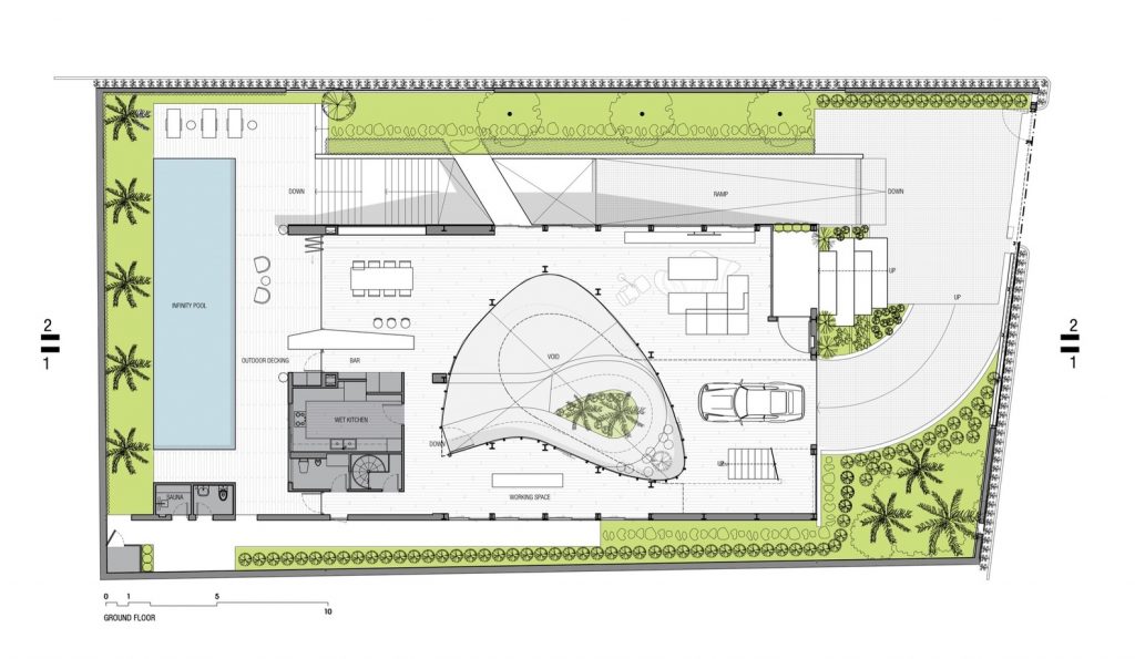
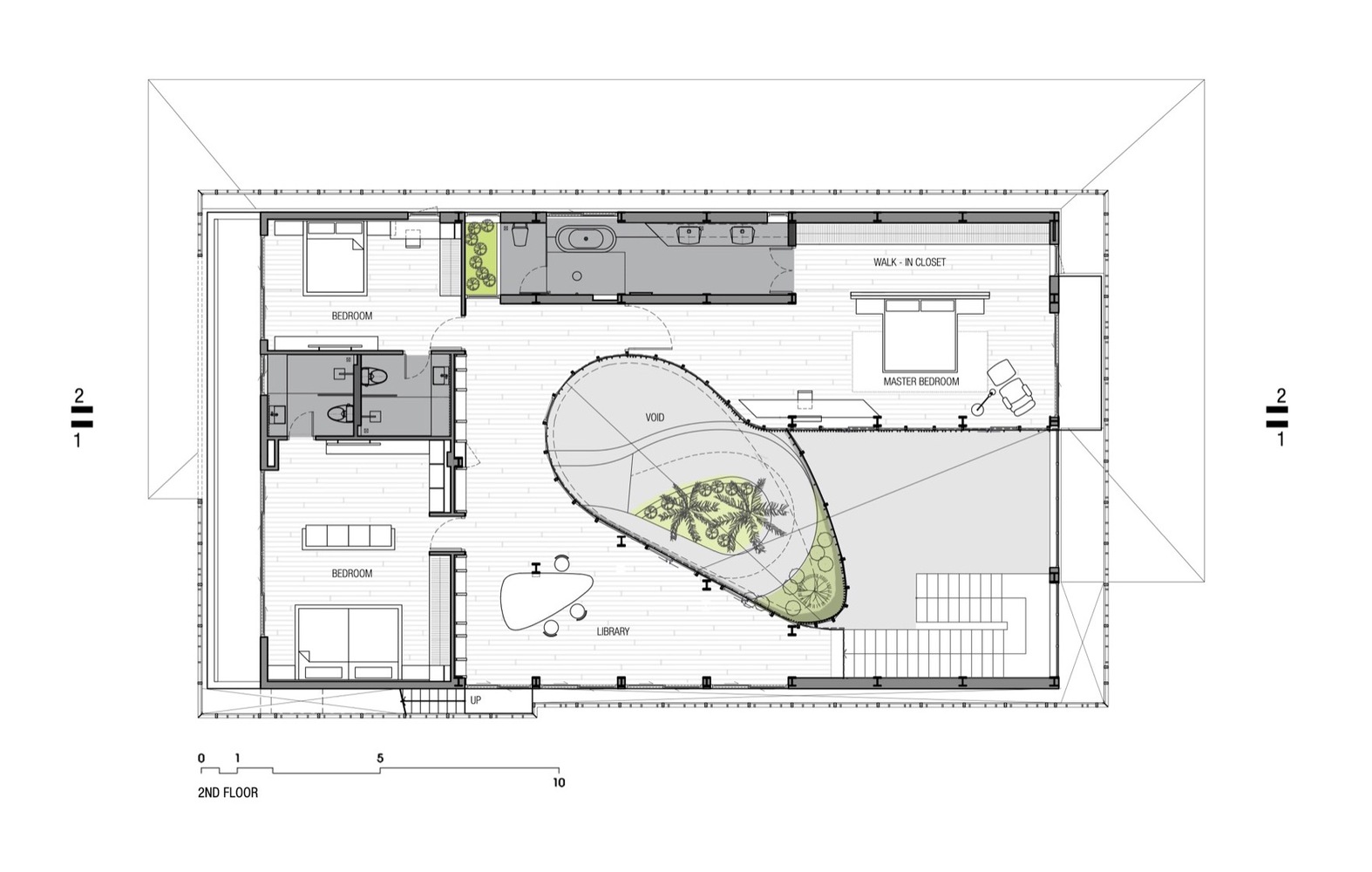
Tầng hầm có sức chứa 7 ô tô, có sân trung tâm lấy sáng và thông gió tự nhiên. Lối vào chính bắt đầu từ đây, theo một đoạn đường nối qua không gian mở tràn ngập cây xanh, dẫn lên tầng trên với không gian tiếp khách, bếp và ăn uống cũng phong cách mở.
Tầng trệt được thiết kế mở và hoàn toàn trong suốt, không có tường ngăn, tạo sự kết nối trực quan cho toàn bộ khuôn viên. Không gian chức năng được thiết kế mở trực tiếp ra sân và cảnh quan xung quanh. Từ tầng này, cư dân có thể có tầm nhìn trực diện ra bộ sưu tập ô tô. Kết cấu được tối giản hóa, tận dụng dầm vượt nhịp dài, tạo cho không gian sự thông thoáng và sang trọng.
Sân sau là không gian riêng tư chính của gia đình với hồ bơi có thể tiếp cận trực tiếp từ nhà bếp và không gian ăn uống. Không gian được bao phủ bởi một tán rộng để bảo vệ khỏi cái nắng gay gắt của Sài Gòn, nhưng vẫn cho phép người dùng trải nghiệm thiên nhiên.
- Thiết kế: VACO Design
- Diện tích: 1083 m²
- Địa điểm: Thảo Điền, Q.2, TP.HCM
- Năm: 2018
- Hình ảnh: Quang Dam
















































































Để lại đánh giá