Giống như bao ngôi nhà ống khác ở Việt Nam, diện tích đất chật hẹp được bù đắp bởi tham vọng hướng trời. Để nội thất không bị cảm giác chật chội và dồn nén, các kiến trúc sư đã tìm đến kiến trúc Edo, phong trào De Stijl và chủ nghĩa hiện đại Việt Nam.

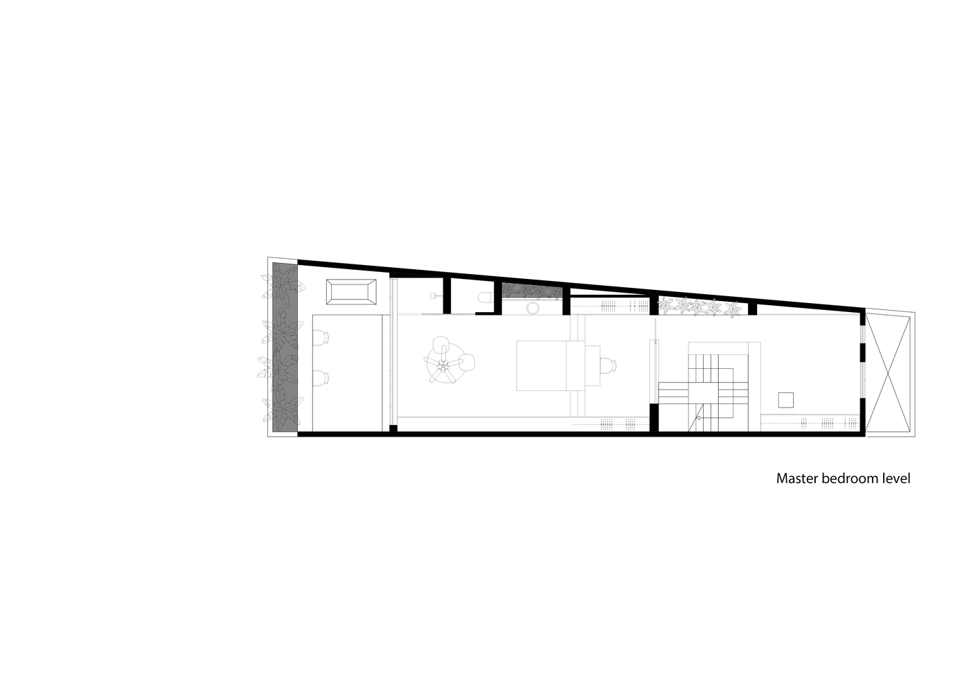
Lô đất hình thang độc đáo, có 2 mặt giáp đường và 2 mặt tiền view sông Sài Gòn, được thiết kế sao cho vừa tầm nhìn và có thể quan sát mọi phía. Ban công được cắt ra từ khung của tòa nhà thay vì nhô ra bên ngoài. Phương pháp trừ lùi này cung cấp bóng râm và vẫn có những khung nhìn toàn cảnh, trong khi vẫn được che giấu khéo léo từ bên ngoài. Giường chính, bồn tắm, chỗ ngồi trong phòng khách được thiết kế liền mạch với căn nhà, tạo ra không gian và tầm nhìn không bị gián đoạn từ tất cả các góc trong phòng.

Các khe hở theo phong cách embrasure được sử dụng thay cho cửa sổ, giúp lưu thông không khí và ánh sáng mặt trời vào nhà. Chúng cũng hoạt động như những chiếc đồng hồ mặt trời – tạo ra những bóng hình học sắc nét được biên đạo bởi ánh sáng ban ngày, trong khi vẫn bảo vệ căn nhà khỏi cái nóng oi bức của Sài Gòn.

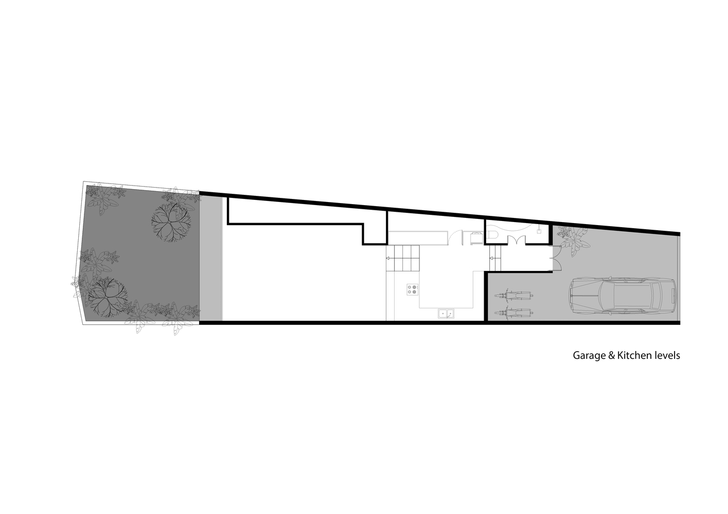
Một con đường đi bộ quanh co giữa cánh cửa kiên cố kiểu Ấn Độ lõm vào trong sẽ dẫn bạn đến phòng khách ngoài trời, qua một khu vườn vui nhộn nằm trên mặt phố, khuất khỏi bên ngoài. Khu vườn được trải khắp ngôi nhà, nhờ đó thực vật được tự do ngự trị giữa các tầng, tô điểm cho các dạng khối cơ bản của cấu trúc.

Khu vực tiếp khách tạo cảm giác gần gũi với một băng ghế dát chạy dọc theo chiều dài của không gian nhấn mạnh vào sự trang nhã – mời các bạn ngồi dài, ngả lưng hoặc bắt chéo chân. Không gian được hưởng lợi từ việc đối mặt với nguồn ánh sáng tự nhiên kép của khu vườn và các góc ôm ngược vào bức tường đối diện.

Một bức tường màu đỏ gỉ ngoài việc loại bỏ ánh sáng chói, bề mặt với nhiều hoa văn của nó còn nhấn mạnh sự giao thoa giữa các vật liệu trong suốt ngôi nhà, tương phản với bê tông đổ của cầu thang và sàn nhà, các đường nét sắc sảo, bóng bẩy của lan can thép và các tấm kính màu lốm đốm. Cảm giác tôn nghiêm vẫn tiếp tục với những vệt sáng màu ngọc bích được trang trí bằng kính.

MM House còn có sự ảnh hưởng bởi kiến trúc nội địa thời Edo của Nhật Bản; chiều cao tầng so le trong mỗi tầng của tòa nhà, kết cấu phụ lộ ra ngoài và sự thống trị của gỗ thô, được xử lý và hoàn thiện ở mức tối thiểu. Mọi thành phần thiết kế giống như những mảnh ghép, được sắp xếp để giảm thiểu ánh sáng mặt trời gay gắt và tạo ra những khung cảnh mờ ảo, mát mẻ.
- Thiết kế: MM++ architects
- Diện tích: 600 m²
- Địa điểm: TP.HCM
- Năm: 2019
- Hình ảnh: Hiroyuki Oki
THAM GIA CHIA SẺ Ý KIẾN VỀ CHỦ ĐỀ NÀY CÙNG ARC VIBES
















































































Để lại đánh giá