[Dẫn lời KTS]
Được thiết kế từ sự tương tác và tôn trọng lẫn nhau trong công việc, Quiin House là một không gian yên tĩnh, trong lành và tràn đầy cảm hứng. Một không gian mà Quiin – chủ nhân của ngôi nhà – có thể thoải mái phản ánh, sáng tạo, làm đồ handmade hoặc chụp ảnh.
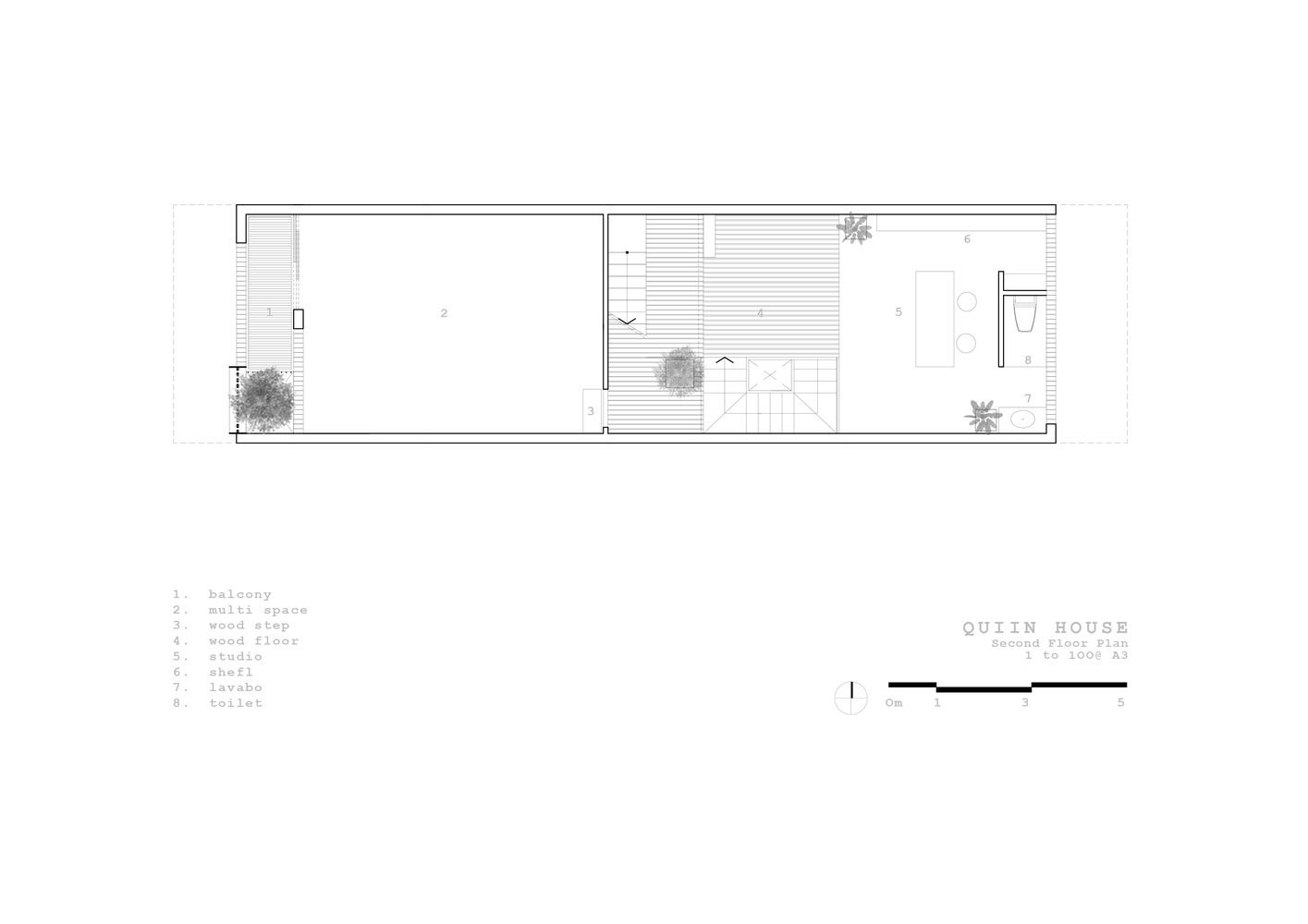
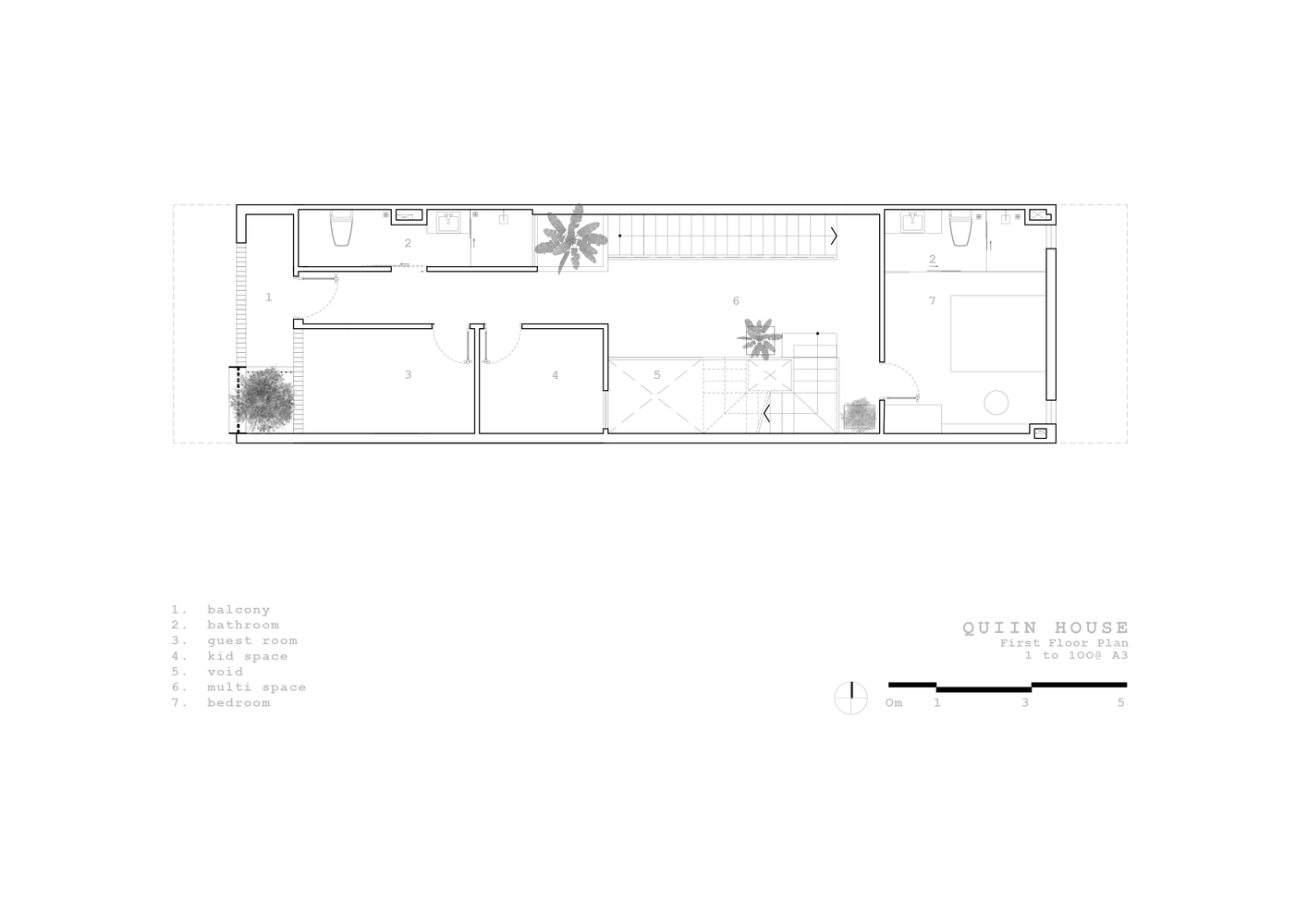
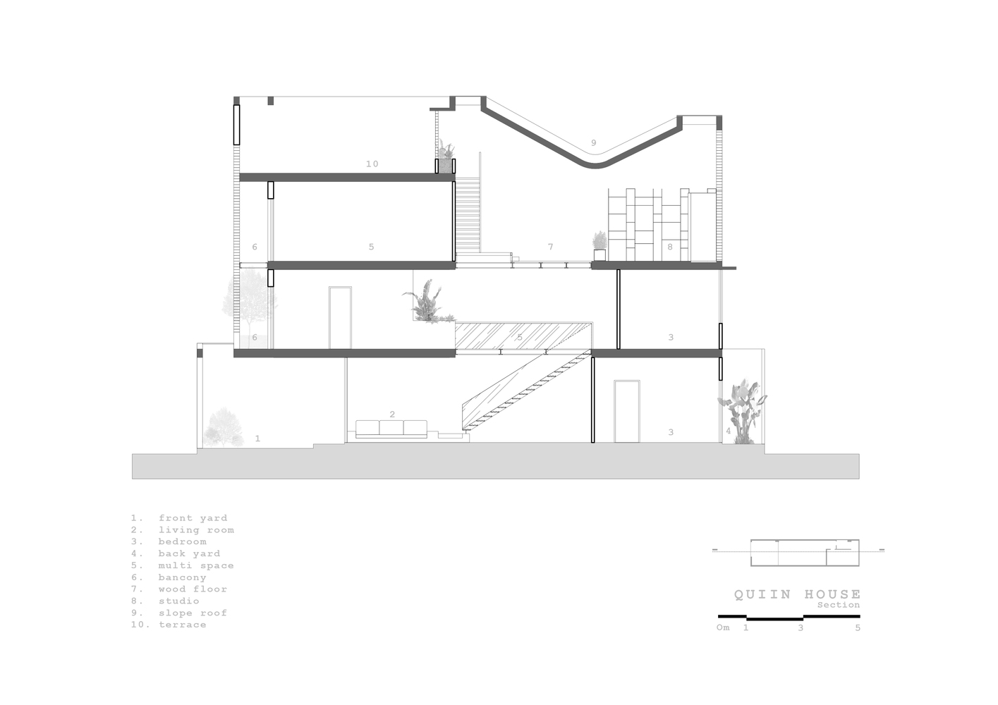
Với một số hạn chế trong không gian chức năng tối thiểu và văn hóa thờ cúng của người Hoa, trong dự án này, KTS đã cố gắng tạo ra một không gian xuyên suốt – “vô hình” – chủ yếu thông qua việc thiết kế các khối chức năng xung quanh.
Các khối chức năng được neo trong các khoảng không gian trống. Giống như việc tạo ra không khí trong ấm trà – là cái “vô hình” – bằng cách nhào nặn ra ấm trà – là cái “hữu hình”. Bên cạnh đó, các khối chức năng “hữu hình” là lớp cách ly cần thiết để tạo không gian yên tĩnh và thông thoáng cho khoảng trống “vô hình”.
- Thiết kế: 23o5studio
- Diện tích: 100 m²
- Địa điểm: Q.6, TP.HCM
- Năm: 2016
- Hình ảnh: Kingkien Photography
THAM GIA CHIA SẺ Ý KIẾN VỀ CHỦ ĐỀ NÀY CÙNG ARC VIBES

























































Để lại đánh giá