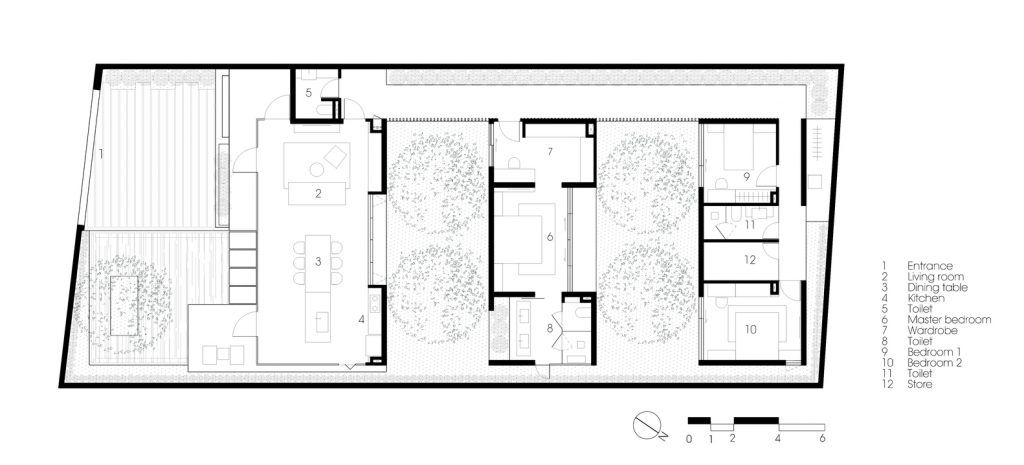
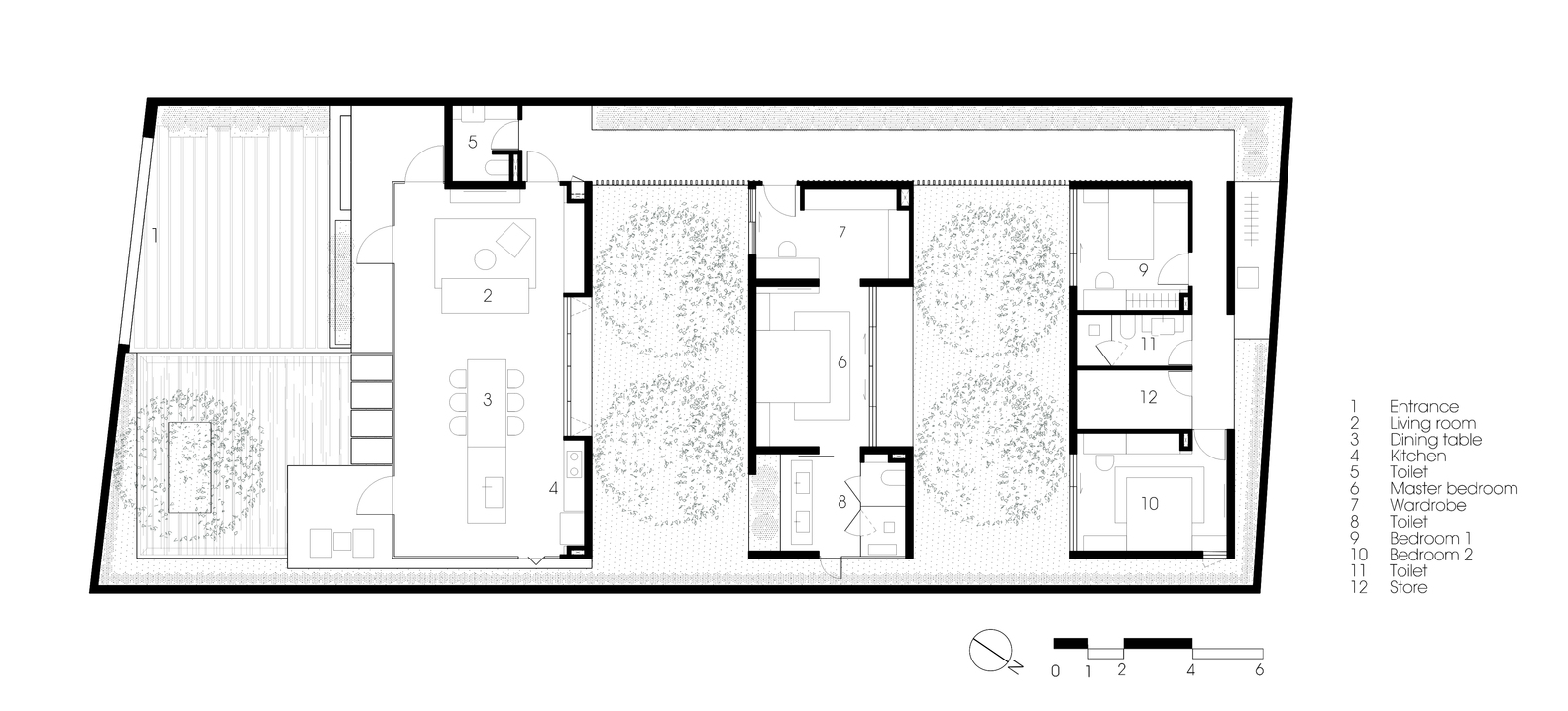
Ngôi nhà nằm trên mảnh đất rộng 470 mét vuông với 60% diện tích đất dành cho cảnh quan. 60% được sắp xếp một cách sáng tạo qua các vách ngăn để thiên nhiên không bao giờ khuất tầm mắt. Với 40% diện tích còn lại, các kiến trúc sư đã chia nó thành những “ngăn kéo” chứa các không gian chức năng, đồng thời chèn vào giữa chúng những “ngăn kéo cảnh quan”.

Tuy nhiên, những “ngăn kéo” này được căn chỉnh trên cùng một hướng bằng cách tạo các vách ngăn xen kẽ; cư dân có ấn tượng về các phòng được đặt không đồng đều. Cũng giống như các ngăn kéo được kéo ra vào một cách ngẫu nhiên, các kiến trúc sư hy vọng người ở và thiên nhiên sẽ giao thoa với nhau mà không có bất kỳ ý định rõ ràng nào.

Khách hàng khi sống bên trong không gian sẽ có những cảm nhận khác nhau tại các phòng khác nhau bởi sự thay đổi liên tục về đặc – trống, sáng – tối.
- Thiết kế: MIA Design Studio
- Diện tích: 470 m²
- Năm: 2016
- Hình ảnh: Hiroyuki Oki
THAM GIA CHIA SẺ Ý KIẾN VỀ CHỦ ĐỀ NÀY CÙNG ARC VIBES



















































Để lại đánh giá