Villa City – ngôi nhà nhỏ với kinh phí hạn chế nhưng vẫn có không gian sống, làm việc và nghỉ ngơi hợp lý, giúp giải tỏa tâm lý ức chế khi bị hạn chế ra ngoài do đại dịch.
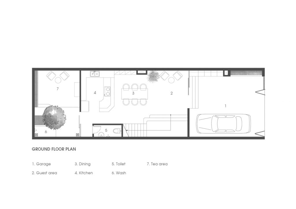
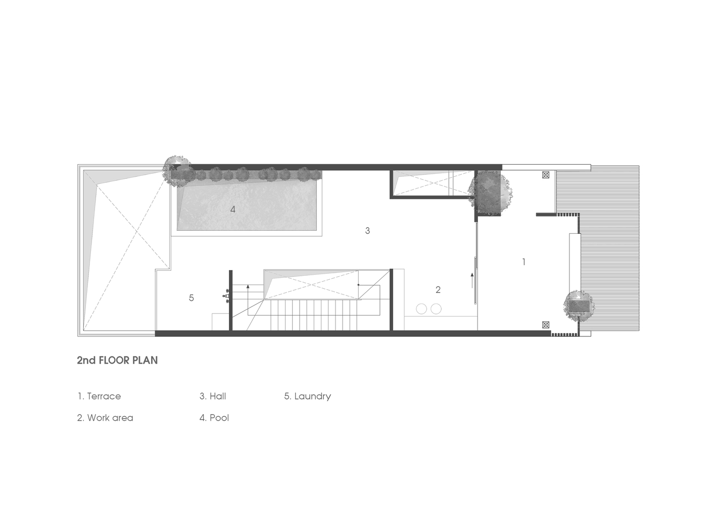
Chủ nhân ngôi nhà là một cặp vợ chồng và hai con trai của họ. Nhờ thu hẹp phòng khách, loại bỏ phòng ngủ, kê giường tầng cho các bé ở chung nên ngôi nhà có thêm không gian để trồng cây xanh, xây bể bơi và nhà trên cây cho các bé vui chơi.
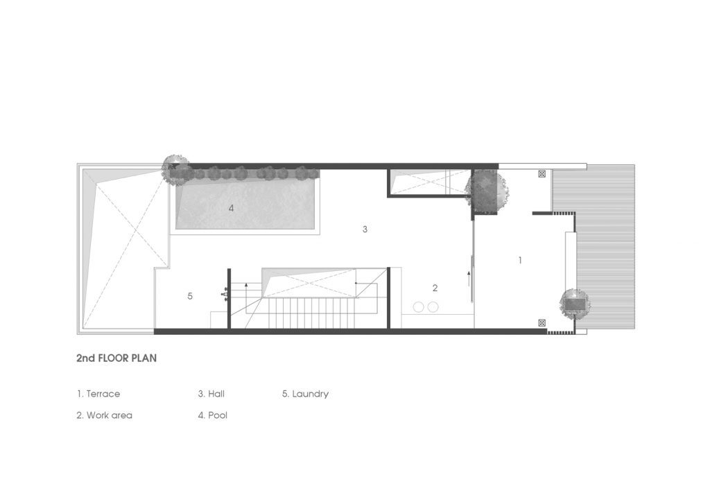
Phòng ngủ của các con và phòng ngủ bố mẹ có cửa thông nhau cũng như thông ra ban công tạo không gian liên kết đủ dài để các bé chạy nhảy thoải mái. Được thiết kế với vách kính lớn nhìn ra cây xanh và lấy ánh sáng tự nhiên từ các ô thông tầng nên phòng ngủ rất thông thoáng và có tầm nhìn rộng.
- Thiết kế: Story Architecture
- Diện tích: 117 m²
- Địa điểm: Q.7, TP.HCM
- Năm: 2021
- Hình ảnh: Minq Bui
THAM GIA CHIA SẺ Ý KIẾN VỀ CHỦ ĐỀ NÀY CÙNG ARC VIBES






























































Để lại đánh giá