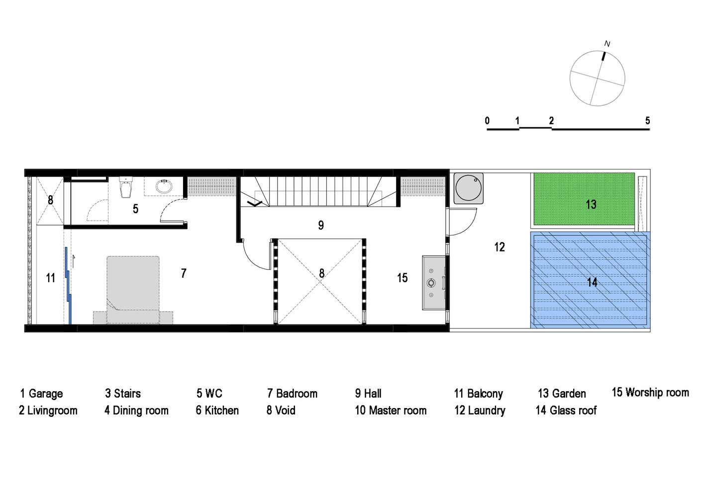
21 House tọa lạc tại khu đô thị mới của tỉnh Thanh Hóa, dân cư vẫn còn thưa thớt. Ý tưởng thiết kế là một ngôi nhà “có không gian mở bên trong nhưng đóng bên ngoài” cho một gia đình trẻ cùng với cha mẹ của họ.
Ngôi nhà có đủ 3 yếu tố: ánh sáng tự nhiên, thông gió và không gian mở bên trong. Gia chủ rất thích cây xanh, họ muốn ngủ trong một căn phòng mà họ có thể nhìn thấy lá xanh khi thức dậy vào mỗi buổi sáng.
KTS tạo ra ngôi nhà với hai khoảng trống chính. Các khoảng trống này đóng vai trò như vị trí trung tâm cho các không gian khác xung quanh kết nối với nhau để tạo ra những khung cảnh đặc biệt. Bên cạnh đó, cầu thang và hành lang được thiết kế không phải là một lối đi đơn giản và nhàm chán mà là một không gian liên tục và tuần tự trở thành một không gian sống.
- Thiết kế: T-architects
- Diện tích: 90 m²
- Địa điểm: Lam Sơn, Thanh Hóa
- Năm: 2015
- Hình ảnh: My Anh Nguyen





















































Để lại đánh giá