Ngôi nhà được thiết kế cho một cặp vợ chồng trẻ và ba em bé. Trong một khu vực đang phát triển, không gian xanh dần biến mất do quá trình đô thị hóa. Sau một thời gian dài ở bên ngoài, họ yêu cầu một không gian sống đầy nắng, gió và yên bình để tận hưởng thời gian ở nhà.

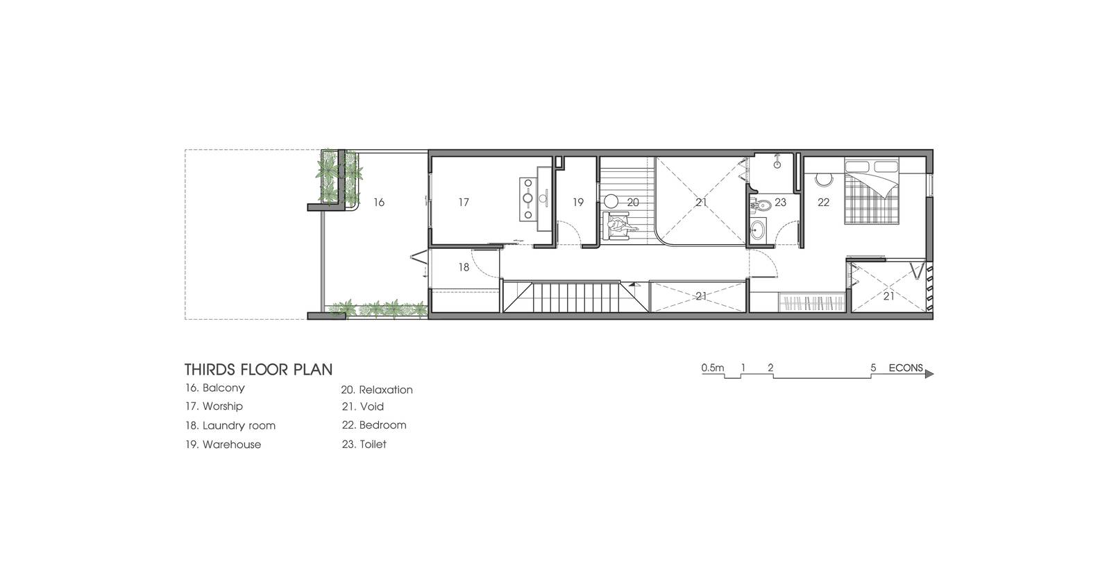
Với việc bố trí không gian chung tầng 1 và các không gian sân vườn, các KTS mong muốn thúc đẩy sự giao lưu, kết nối giữa những người sống trong nhà, tại các khu vực thông tầng mọi người đều có thể giao lưu với các không gian khác trong nhà. Từ đó khuyến khích các hoạt động chung của gia đình.

Ngoài ra, với cây xanh đan xen và sân vườn được đưa vào từng khu vực lân cận của không gian sống, ngôi nhà như một sự kết nối liền mạch, không giới hạn giữa nhà và vườn, mang lại cảm giác bình yên.

Về không gian nội thất, gỗ được sử dụng làm chất liệu nội thất chính tạo cảm giác ấm cúng cho ngôi nhà. Bên cạnh đó, kết hợp các gam màu trung tính xung quanh để giảm nhiệt độ bên trong ngôi nhà một cách đáng kể.
- Thiết kế: Econs Architecture
- Diện tích: 305 m²
- Địa điểm: Hòa Xuân, Đà Nẵng
- Năm: 2021
- Hình ảnh: Nguyen Cuong




















































Để lại đánh giá