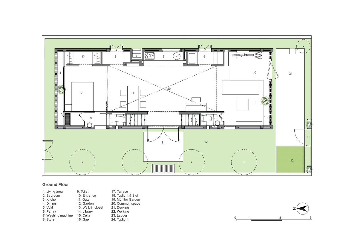
Lấy cảm hứng từ khả năng xây tổ đặc biệt của loài mối, kiến trúc sư đã thiết kế ngôi nhà với không gian chung lớn ở trung tâm, nơi có quầy nấu ăn, bàn ăn và góc giải trí. Sau đó, “tiền sảnh” này dẫn đến các khu vực chức năng khác nhau trong nhà như phòng nghỉ, phòng khách và các phòng ngủ. Tất cả đều được kết nối một cách nghệ thuật và thoải mái. Gác lửng là nơi bố trí một phòng ngủ khác, một phòng thờ và một thư viện nhỏ.

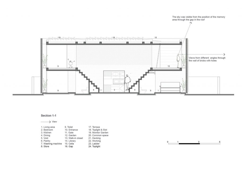
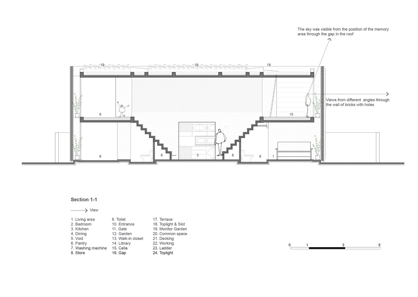
Tầng áp mái là khu vực thư giãn mở với rèm che bằng dây leo. Được thiết kế cho ba người ở nên ngôi nhà không cần nhiều vách ngăn ngoại trừ vách ngăn phòng thờ và các phòng ngủ. Trong khi đó, tại các khu vực chung trong nhà, các thành viên trong gia đình vẫn có thể nhìn thấy và trò chuyện với nhau qua các bức tường có lỗ được bố trí ngẫu nhiên nhưng khoa học giống như trong một tổ mối thực thụ.

Ngôi nhà chủ yếu được xây dựng bằng gạch nung cũng là vật liệu truyền thống của địa phương. Chúng chính là vật liệu được sử dụng để xây dựng các tháp Champa cổ bí ẩn. Trần nhà được đúc bằng bê tông nguyên bản và sàn nhà được lát bằng đá mài màu tối. Tất cả nội thất đều được làm bằng gỗ từ mái của ngôi nhà cũ, giúp tiết kiệm đáng kể tổng chi phí xây dựng thực tế (tầm 550tr).

Tường được xây hoàn toàn bằng gạch nung giúp ngôi nhà mát mẻ vào mùa hè. Loại gạch này còn có thể đảm nhiệm chức năng giữ độ ẩm nhất định cho toàn bộ ngôi nhà. Bên cạnh đó, việc bố trí các khu vệ sinh và kho chứa đồ dọc theo các bức tường không chỉ giúp chắn gió mạnh trong mùa mưa bão mà còn có thể dẫn chúng đi qua các khe hở thẳng lên mái nhà. Điều này là do sự khác biệt đáng kể về áp suất. Trên tầng mái, kiến trúc sư sử dụng hệ thống dầm và thông tầng ngược tạo thành khu vườn nhỏ trồng cây – nơi lý tưởng để cả gia đình thư giãn, hóng gió trong những ngày hè oi bức.

Thiết kế đặc biệt của những bức tường gạch nung với nhiều lỗ hổng cùng với khoảng thông tầng rộng lớn giúp gió và ánh sáng len lỏi đến mọi ngóc ngách trong nhà, ngay cả những khu vực khó tiếp cận nhất. Chủ nhân ngôi nhà cũng có thể tận hưởng bầu trời trong xanh vào ban ngày hoặc ánh trăng vào ban đêm từ phòng khách, bàn ăn hay nhà bếp.

Vào các thời điểm khác nhau trong ngày, sự đa dạng của cường độ ánh sáng xuyên qua các lỗ giữa các tầng khiến màu tường gạch thay đổi từ đỏ nhạt vào buổi sáng, đỏ vào buổi trưa, đỏ sẫm vào buổi chiều và tím hơn vào cuối buổi chiều tối. Vào ban đêm, ngôi nhà trông giống như một chiếc đèn lồng khổng lồ với ánh sáng ảo diệu hắt ra từ các lỗ trên tường.

Cả sân và vườn đều được trải sỏi thô với một số cây trồng (được sắp xếp lại) từ ngôi nhà cũ để giữ lại một số nét quen thuộc cho chủ nhân. Việc tận dụng tối đa hệ thống thông gió, chiếu sáng và cơ chế điều hòa không khí tự nhiên đã khiến The Termitary House tối ưu hóa những yếu tố tích cực của một công trình nhiệt đới hiệu quả.
- Thiết kế: Tropical Space
- Diện tích: 80 m²
- Địa điểm: Thanh Khê, Đà Nẵng
- Năm: 2014
- Hình ảnh: Hiroyuki Oki
- Theo: Ngô Ly Kha
THAM GIA CHIA SẺ Ý KIẾN VỀ CHỦ ĐỀ NÀY CÙNG ARC VIBES






























































Để lại đánh giá